Budapest, III.kerület
Békásmegyer 

Ingatlan adatai
Irányár: 169 900 000 Ft
Típus: ház
Kategória: eladó
Alapterület: 170 m2
Fűtés: egyéb
Állapota: -
Szobák száma: 3
Építés éve: 1976
Szintek száma: -
Részletes leírás
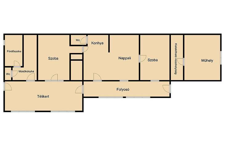
Békásmegyer-Ófaluban ELADÓ egy 170 négyzetméteres ÖNÁLLÓ CSALÁDIHÁZ 640 négyzetméteres öntözőrendszerrel ellátott sík telken!Az ingatlan jelenlegi elosztása 3 szobából, konyhából, egy fürdőszobából, egy mosókonyhából és egy télikertből épül fel.A telken található még egy 36 négyzetméteres épületrész is, ami jelenleg műhelyként üzemel és külön villanyórával is ellátott, továbbá a házhoz tartozik egy 20 négyzetméteres pince is, ami a télikertből nyílik.A szobákban fa, illetve laminált parketta burkolat található míg a vizeshelyiségekben járólap.A nyílászárók fából készültek.A fűtésről, illetve nyáron a hűtésről 3 darab inverteres klíma gondoskodik.A ház víz-, csatornarendszere, illetve a villanyvezetékek teljes körű felújításon estek át. A ház fa födémes, ami cseréptetővel van fedve. A házban a biztonságról egy riasztórendszer és kamerák gondoskodnak.A ház kétgenerációs használatra is alkalmas!Környékről:Közelben minden olyan szolgálatás megtalálható amire szüksége lehet a mindennapokban (kisebb élelmiszer boltok, piac, éttermek, gyógyszertárak). Gyerekes családoknak nagyon ideális hiszen játszóterek, Óvoda, Iskola, Egyetem van a közelben.Tömegközlekedés szempontjából is tökéletes hiszen pár perc sétára található számos buszmegálló, illetve a H5-ös hév.FINANSZÍROZÁS:Banki finanszírozással is megvásárolható, melyben irodánk ingyenes tanácsadással áll rendelkezésükre!VEVŐINK RÉSZÉRE A KÖZVETÍTÉS DÍJTALAN!A beépített bútorzat a vételár részét képezi.A hirdetésben szereplő adatok tájékoztató jellegűek.
További adatok
Telekterület: 640 m2
Kert mérete: 640 m2
Erkély mérete: -
Felszereltség: -
Parkolás: -
Kilátás: kertre néző
Egyéb extrák:  
-
Hirdető adatai
Hirdető neve: MPD Hungary Kft.
Kapcsolattartó: Monte Stella Kft.
Hirdető telefonszáma: +36205034414
Honlap: -