Budapest, XV.kerület
Pestújhely 

Ingatlan adatai
Irányár: 155 900 000 Ft
Típus: ház
Kategória: eladó
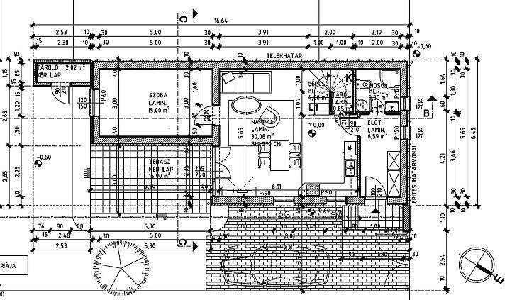
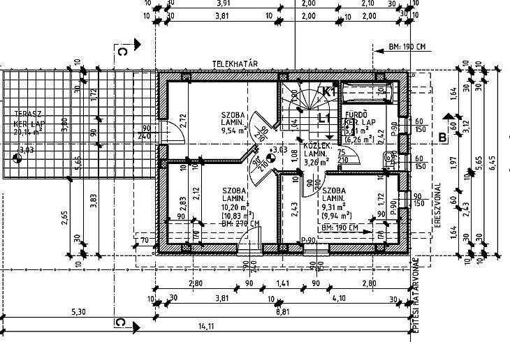
Alapterület: 111 m2
Fűtés: -
Állapota: új
Szobák száma: 3+1
Építés éve: 2026
Szintek száma: -
Részletes leírás
A XV. KERÜLETBEN, PESTÚJHELYEN, CSENDES, CSALÁDI HÁZAS RÉSZEN, ÚJ ÉPÍTÉSŰ, AMERIKAI KONYHÁS NAPPALIS, 3 HÁLÓSZOBÁS, 111 M2, KÉTSZINTES CSALÁDI HÁZ, 437 M2 TELEKKEL, TÁGAS TERASSZAL, AUTÓBEÁLLÓVAL.A HIRDETÉSBEN SZEREPLŐ FOTÓK REFERENCIA KÉPEK!!!!A HÁZ JELLEMZŐI:A ház várható átadási határideje 2026 év vége.Az ingatlan kétszintes lesz, 30-as porotherm téglából épül, amelyet egy 10 cm-es grafitos szigeteléssel is ellátnak majd. A földszinten egy tágas amerikai konyhás nappali, szoba, mosókonyha- wc, előtér kerül kialakításra, az emeleten pedig 3 szoba, fürdőszoba, közlekedő és terasz.A nyílászárók 5 légkamrás, 3 rétegű hőszigetelt ablakok lesznek. A fűtést kondenzációs kazán fogja biztosítani, a hideg burkolatok alatt padlófűtés kerül kialakításra, a szobákban pedig lapradiátorokat szerelnek fel. 2db hűtő-fűtő klíma is beszerelésre kerül. Az ár tartalmazza a burkolatok, szaniterek beépítését, az anyagárat nem.Igény esetén extra költséggel kérhető: elektromos redőny, kamera, riasztó, konyhabútor, beépített szekrények.Referencia ingatlanok megtekintése is lehetséges.FINANSZÍROZÁS:Az ingatlan TEHERMENTES! Banki finanszírozással is megvásárolható, melyben irodánk ingyenes tanácsadással áll rendelkezésükre!VEVŐINK RÉSZÉRE A KÖZVETÍTÉS DÍJTALAN !!A hirdetésben szereplő adatok tájékoztató jellegűek.
További adatok
Telekterület: 437 m2
Kert mérete: 437 m2
Erkély mérete: -
Felszereltség: -
Parkolás: -
Kilátás: -
Egyéb extrák:  
-
Hirdető adatai
Hirdető neve: MPD Hungary Kft.
Kapcsolattartó: Újhely Ingatlan Kft.
Hirdető telefonszáma: +36202885981
Honlap: -