Pest megye, Gyál
 

Ingatlan adatai
Irányár: 130 000 000 Ft
Típus: ház
Kategória: eladó
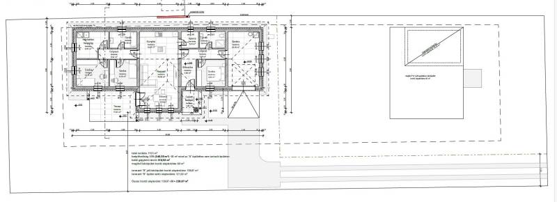
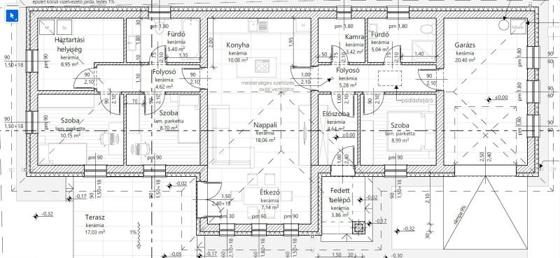
Alapterület: 130 m2
Fűtés: -
Állapota: új
Szobák száma: 5
Építés éve: 2026
Szintek száma: -
Részletes leírás
Egyszintes családi ház rendkívül magas műszaki tartalommal! Gyál központjához közel, csendes, új építésű, 123 m2-es, nappali + 4 szobás, 2 fürdőszobás, dél-nyugati tájolású családi ház 640 m2-es telekrésszel 2026 nyári végi átadással kulcsrakészen eladó. Csúcstechnológiájú Daikin hőszivattyú biztosítja a padlófűtést, a mennyezet hűtést-fűtést és a meleg vizet. A nappaliban egy inverteres hűtő-fűtő klíma is kialakításra kerül. Elektromos alumínium redőnyök szúnyoghálóval. Riasztó. Elektromos kapu, garázsajtó. H tarifa. 1x32A és 3x20A. Referenciaház megtekinthető. A fotókon egy rövidesen átadásra kerülő ingatlan látható. Az ingatlant csak irodánk kínálatában találja.Összközműves aszfaltozott, széles utca. Közelben iskola, óvoda, szolgáltató egységek, üzletek. Jó tömegközlekedés.Vasbeton sávalap, 30 cm-es Porotherm tégla főfalak 12 cm-es dryvit hőszigeteléssel. Műanyag homlokzati nyílászárók 3 rétegű üveggel. Fa födém 30 cm. kőzetgyapot hőszigeteléssel. Bramac cserép héjalás. Festés, burkolás, szaniterek, belső ajtók választhatók. A hideg, meleg burkolatokat 6000 Ft./m2 árig, a belső ajtókat 75000 Ft./db. árig tartalmazza a vételár. Mosdó csaptelep: 25 ezer Ft., mosdó: 25. ezer Ft., Kádtöltő csaptelep: 40 ezer Ft., Fürdőkád: 100 ezer Ft., Zuhany csaptelep szett: 40 ezer Ft. Zuhanykabin épített zuhanyhoz: 200 ezer Ft., WC csésze: 25 ezer Ft. (beépített tartályos wc-k kerülnek kialakításra)Magyarország piacvezető hitelközvetítője által egyedi kamatkedvezményekkel és bankfüggetlen, díjmentes hitelügyintézéssel is segítjük vásárlását. Hívjon bizalommal!
További adatok
Telekterület: 640 m2
Kert mérete: 640 m2
Erkély mérete: 16 m2
Felszereltség: -
Parkolás: -
Kilátás: -
Egyéb extrák:  
-
Hirdető adatai
Hirdető neve: RARIK-1986 Kft.
Kapcsolattartó: Roland Vörös
Hirdető telefonszáma: 06-20-571-8880
Honlap: -