Budapest, XI.kerület
 

Ingatlan adatai
Irányár: 129 000 000 Ft
Típus: lakás (tégla)
Kategória: eladó
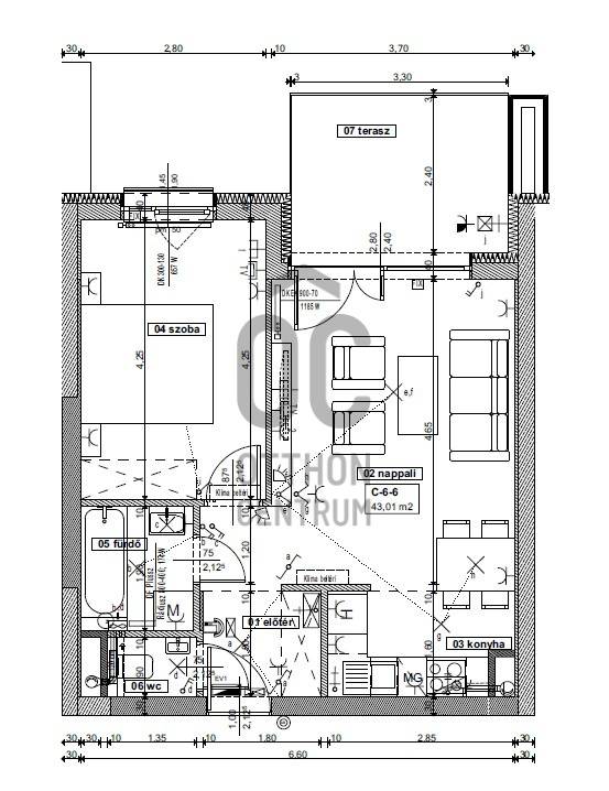
Alapterület: 43 m2
Fűtés: házközponti egyedi méréssel
Állapota: -
Szobák száma: 2
Építés éve: 2020
Szintek száma: -
Részletes leírás
Sasad Liget Lakópark V. ütemében a legjobb adottságú 2 szobás lakást kínáljuk eladásra. Felső emeleti, teraszos, Széchenyi-hegyre néző, kiváló állapotú prémium lakás.A Sasad Liget több mint 10 hektáros területen, mindössze 25%-os beépítettséggel valósult meg.A nagy összefüggő zöldfelületek, parkok és sétányok kellemes természetközeli életteret biztosítanak az itt lakóknak.A belváros gyorsan elérhető a 4-es metróval és több buszjárattal.A lakás korszerű épületgépészettel, háromrétegű nyílászárókkal és egyedi mérésű fűtéssel rendelkezik, így a fenntartási költségek kimondottan kedvezőek.A lakáshoz teremgarázs beálló is vásárolható melynek ára 15M Ft.
További adatok
Telekterület: -
Kert mérete: -
Erkély mérete: 8 m2
Felszereltség: -
Parkolás: -
Kilátás: kertre néző
Egyéb extrák:  
-
Hirdető adatai
Hirdető neve: Otthon Centrum
Kapcsolattartó: Zsombok Előd
Hirdető telefonszáma: +36 70 454 1395
Honlap: -