Zala megye, Zalaegerszeg
 

Ingatlan adatai
Irányár: 58 000 000 Ft
Típus: ház
Kategória: eladó
Alapterület: 77 m2
Fűtés: gáz (konvektor)
Állapota: -
Szobák száma: 3
Építés éve: 1920
Szintek száma: -
Részletes leírás
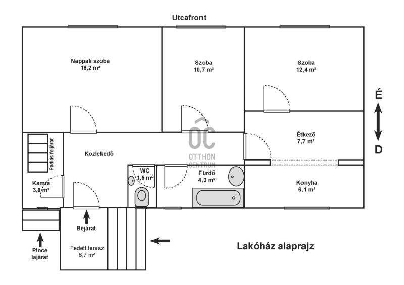
Zalaegerszeg belvárosában a Vizslapark szomszédságában 3 szobás, 85 m2-es polgári stílusú kertes ház vált eladóvá, melynek jellemzői a következők. - A tégla építésű, bruttó 85 m2-es (nettó 77 m2) ingatlan 457 m2-es telken helyezkedik el.- A ház az 1920-as években épült, azonban jelenlegi tulajdonosa a 80-as évek közepén az akkori kor igényeinek megfelelően teljes mértékben felújította. - A tető héjazata Bramac cserép borítást kapott. - A ház külső falazata is megújult. - A föld alapú pince födémrészét megerősítették, lejáratát felújították.- A villamosvezetékek – aluminiumra -, vízvezetékek cseréje megtörtént.- A gázt az ingatlanba bevezették.- A hidegburkolatokat korszerűsítették, a szobákat parkettával látták el, melyek jelenleg is tökéletes állapotban vannak.- Jelenlegi fűtése gázkonvektorral biztosított. Ezek burkolata egyedi és különleges, a ház belső varázsával tökéletesen harmonizál. - A nyílászárók fa szerkezetűek, a bejárati ajtót kívülről egy fa szerkezetű ajtó védi, szigeteli. - Melegvíz ellátása villanybojlerrel történik.- Az udvarban szintén tégla építésű garázs, tárolók, állatok tartására (tyúkok, szárnyasok) alkalmas házikó található.- A tárolók számtalan lehetőséget (házi kondi helyiség, hobby helyiség, családi wellness rész szaunával, jakuzzival stb.) rejtenek magukban. Ezek megvalósítása az új tulajdonos fantáziájára van bízva.- A föld alapú pince hőmérséklete lehetővé teszi növények, akár gyümölcsök, zöldségek téli raktározását. Avagy a mókuskerékbe zárt, kifacsaró hétköznapok ellensúlyozásaként borospince kialakítását, ahol a család és a barátok romantikus hangulatú körülmények között felhőtlenül beszélgethetnek és kortyolgathatják a zamatos nedűket.- Az örökzöldekkel, virágokkal, gyümölcsfával tarkított udvar is bővelkedik lehetőségekben, mely az új gazda ötleteinek megvalósítására vár.…és kinek is ajánlanám ezt az ingatlant?Valójában annak szól ez a kis ékszerdoboz, aki hűséggel fordul a múlt építészete felé, és meglátja benne a saját jövőjének lehetőségét. Aki hisz abban, hogy a régi dolgok nem elavultak, csupán új életre várnak – modern formában, de változatlan lélekkel.Irodánk teljes körű szolgáltatást nyújt kereső ügyfeleknek, amennyiben Önnek hitelre van szüksége, segítünk!Szakszerű tanácsadással, teljes körű ingyenes hitel és CSOK ügyintézéssel, energetikai tanúsítvány elkészítésével és kedvező díjszabású ügyvéddel nyújtunk segítséget!Ha Ön is szeretne többet megtudni erről az ingatlanról, vagy kérdései lennének, ne habozzon felkeresni minket bizalommal.Az Ön elégedettsége a legfontosabb számunkra, és örömmel segítünk Önnek a legjobb döntés meghozatalában.
További adatok
Telekterület: 457 m2
Kert mérete: 457 m2
Erkély mérete: 7 m2
Felszereltség: -
Parkolás: -
Kilátás: -
Egyéb extrák:  
-
Hirdető adatai
Hirdető neve: Otthon Centrum
Kapcsolattartó: Vucskó Krisztina
Hirdető telefonszáma: +36 70 716 8171
Honlap: -