Budapest, II.kerület
 

Ingatlan adatai
Irányár: 205 000 000 Ft
Típus: lakás (tégla)
Kategória: eladó
Alapterület: 103 m2
Fűtés: -
Állapota: -
Szobák száma: 3
Építés éve: 2023
Szintek száma: -
Részletes leírás
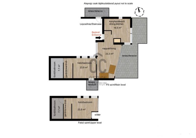
Ha olyan otthont keresel, ahol a panoráma nem alkalmi élmény, hanem a mindennapok természetes része, akkor ezt a lakást érdemes megnézned.ÜDV ITTHON!A II. kerület egyik legszebb, zöldövezeti részén, Budaligeten, egy mindössze háromlakásos, intim társasház legfelső szintjén kínálunk megvételre egy belső kétszintes, panorámás DUPLEX penthouse-t, közvetlen erdőkapcsolattal. Itt valóban megérkezik az ember: csend, zöld, fény és tér veszi körül.Üdv itthon!A lakás nettó 103 m²-es (bruttó 124 m²) belső tere nagyvonalú és átgondolt, amelyhez három terasz kapcsolódik, összesen 64 m² alapterülettel. A teraszok és az óriási üvegfelületek miatt a természet folyamatosan jelen van – reggel madárcsicsergéssel indul a nap, este a panoráma nyugtató látványával zárul.Tér, ami élményt adAz alsó szinten egy világos, tágas nappali–konyha–étkező tér kapott helyet, amely ideális mind a hétköznapokhoz, mind vendégek fogadásához. Innen több terasz is közvetlenül elérhető, így a kinti és benti terek szinte összeolvadnak.Ezen a szinten található egy hálószoba, gardrób és fürdőszoba is – tökéletes vendég- vagy dolgozószobának.A felső szint már a teljes nyugalomé: egy különálló hálószoba saját gardróbbal és fürdőszobával, ahol a tér igazi különlegessége a teljes üvegfal. Ez a megoldás vizuálisan összeköti a szinteket, miközben egészen egyedi, modern hangulatot ad – ritka, látványos és nagyon „penthouse-érzés”.Luxus, ami nem hivalkodik – csak működikA lakás műszaki tartalma valóban felső kategória, minden kompromisszum nélkül:Panasonic hőszivattyús rendszerPadlófűtés és mennyezethűtés a tökéletes hőérzetértHővisszanyerős szellőztető rendszerHáromrétegű, reflexiós üvegezésű nyílászárókElektromos ablaknyitásDigitális videós kaputelefon és riasztórendszerKözponti vízszűrő rendszerLakásonként 3×32A elektromos teljesítményElektromos autótöltéshez kiépített háromfázisú csatlakozásA házban 6 személyes hidraulikus lift szolgálja a kényelmet.A lakáshoz 2 garázsbeálló és egy 14 m²-es tároló tartozik (külön megvásárolandók).Kinek ideális ez az otthon?Annak, aki:szereti, ha a természet szó szerint karnyújtásnyira van,értékeli a csendet, a panorámát és az intimitást,nem tömegingatlant keres, hanem egyedi, ritka lehetőséget,hosszú távon gondolkodik, és tudja, hogy az ilyen adottságú ingatlan mindig érték marad.Hívj!----------------------------------------------Díjmentes, bankfüggetlen hiteltanácsadással támogatjuk vevő ügyfeleinket a számukra legelőnyösebb finanszírozási döntések meghozatalában. Opcionálisan igénybe vehető kiegészítő szolgáltatásainkkal – mint ügyvédi közreműködés, energetikai tanúsítvány vagy villamos biztonsági felülvizsgálat – teljes körű szakmai támogatást nyújtunk az adásvétel folyamatának minden egyes lépésénél.----------------------------------------------A hirdetésben szereplő információk tájékoztató jellegűek. A tévedés és az árváltoztatás jogát fenntartjuk. Az esetleges elírásokért és technikai hibákért felelősséget nem vállalunk. Az energetikai tanúsítvány készítése folyamatban van, amint rendelkezésre áll, úgy azzal a hirdetés frissítésre kerül.
További adatok
Telekterület: -
Kert mérete: -
Erkély mérete: 64 m2
Felszereltség: -
Parkolás: -
Kilátás: utcai
Egyéb extrák:  
-
Hirdető adatai
Hirdető neve: Otthon Centrum
Kapcsolattartó: Pieke Dénes
Hirdető telefonszáma: +36 70 388 5291
Honlap: -