Budapest, XIII.kerület
 

Ingatlan adatai
Irányár: 95 000 000 Ft
Típus: lakás (tégla)
Kategória: eladó
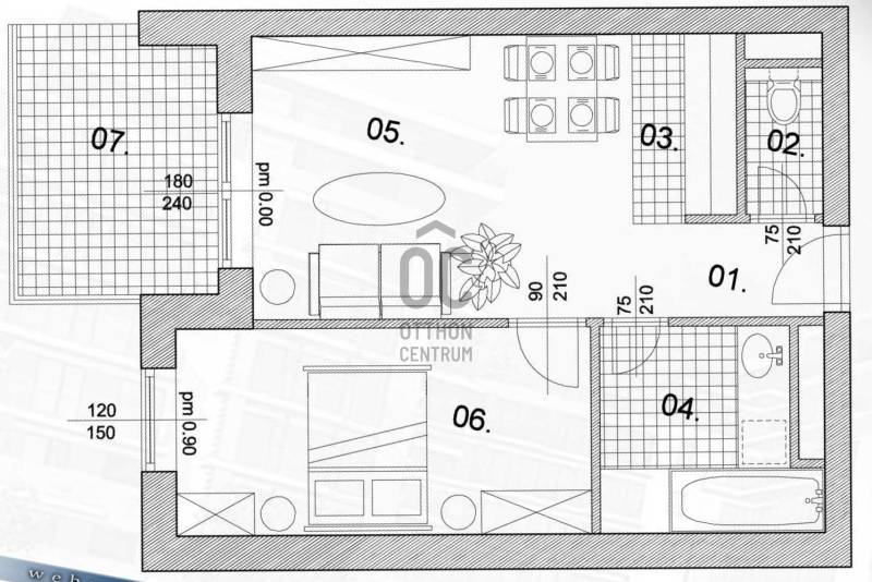
Alapterület: 38 m2
Fűtés: házközponti egyedi méréssel
Állapota: -
Szobák száma: 2
Építés éve: 2019
Szintek száma: -
Részletes leírás
Marina Garden lakóparkXIII. Marina parton a 2019-ben átadott Marina Garden Lakóparkban, III. emeleti, D-Nyi fekvésű, világos, 40 nm + 7,5 nm erkélyes, 2 szobás lakás magas minőségű burkolatokkal, klímával, okos otthon rendszer előkészítéssel eladó. Az ingatlan vételárát képezi a teljes bútorzat, és a gépesített konyha.Mélygarázsban beálló vásárolható, 7.200.000 Ft.Részletekért, megtekintéssel kapcsolatban várom a hívását.
További adatok
Telekterület: -
Kert mérete: -
Erkély mérete: 8 m2
Felszereltség: -
Parkolás: -
Kilátás: kertre néző
Egyéb extrák:  
-
Hirdető adatai
Hirdető neve: Otthon Centrum
Kapcsolattartó: Oroszi Csaba
Hirdető telefonszáma: +36 70 412 3866
Honlap: -