Budapest, XIII.kerület
 

Ingatlan adatai
Irányár: 84 990 900 Ft
Típus: lakás (tégla)
Kategória: eladó
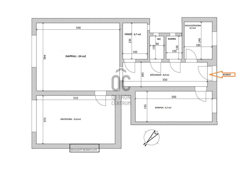
Alapterület: 69 m2
Fűtés: gáz (konvektor)
Állapota: felújítást igényel
Szobák száma: 3
Építés éve: 1920
Szintek száma: -
Részletes leírás
A XIII. kerület egyik legkedveltebb részén, a Visegrádi utca és a Victor Hugo utca sarkán, kínálunk eladásra egy 69 négyzetméteres, háromszobás lakást, amely teljesen felújítandó állapotú – cserébe viszont egy igazán kivételes lokációt kap. A WestEnd mindössze 5 perc sétára található, így minden fontos szolgáltatás pillanatok alatt elérhető.Az ingatlan egy régi típusú, dupla körfolyosós, polgári társasházban helyezkedik el. A társasház rendezett, nagyon jó állapotú, és kifejezetten jó lakóközösséggel rendelkezik. A középső lakás elhelyezkedésének köszönhetően különleges előnyöket kínál: a ház elrendezése miatt rendkívül csendes, szinte semmit nem hallani az utca zajából. A 4. emeleti fekvés pedig garantálja, hogy a lakás a nap minden szakában napfényben úszik, így világos, barátságos tereket biztosít.A tágas nappali és a két jól alakítható szoba remek alapot nyújtanak egy modern, karakteres otthon kialakításához. A fürdő és a konyha szabadon újratervezhető, teljes mértékben az Ön elképzelései szerint.A környék egyszerűen páratlan: Újlipótváros a városi élet lüktetését és a nyugodt, barátságos hangulatot ötvözi. Kávézók, éttermek, üzletek, zöld parkok és kiváló közlekedési lehetőségek (metró, busz, bicikliút) mind elérhetők pár perces sétával.Az ingatlan tehermentes, így az adásvételt követően azonnal birtokba vehető – akár saját célra, akár értékálló befektetésként is kiváló választás.Lépjen be egy új fejezetbe, és valósítsa meg saját stílusú otthonát ebben a napfényes, csendes, különleges adottságú lakásban!Keressen bennünket bizalommal – örömmel segítünk elképzelései megvalósításában.Ez az ingatlan a \"Hűség csomag\" megbízási portfólióhoz tartozik. Részletek az Otthon Centrum weboldalán.
További adatok
Telekterület: -
Kert mérete: -
Erkély mérete: -
Felszereltség: -
Parkolás: -
Kilátás: udvari
Egyéb extrák:  
-
Hirdető adatai
Hirdető neve: Otthon Centrum
Kapcsolattartó: Pogány László
Hirdető telefonszáma: +36 70 469 3856
Honlap: -