Budapest, VIII.kerület
 

Ingatlan adatai
Irányár: 48 500 000 Ft
Típus: lakás (tégla)
Kategória: eladó
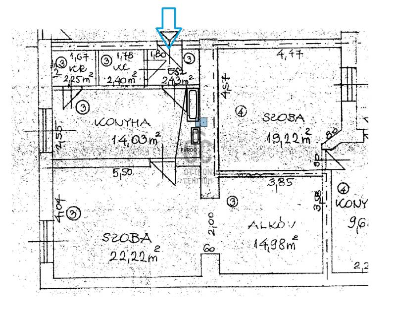
Alapterület: 58 m2
Fűtés: -
Állapota: -
Szobák száma: 2
Építés éve: 1930
Szintek száma: -
Részletes leírás
A Nemzeti Közszolgálati Egyetem bővítési projektje keretében hamarosan megújuló Orczy park szomszédságában, eladó egy felújítást igénylő, de tágas terekkel rendelkező remekül alakítható, napfényes földszinti lakás, amely jó fényviszonyokkal rendelkezik és nyáron is kellemes klímával. A lakást jelenleg 1 szobás tulajdoni lapon, de akár nappali + 2 hálós lakássá is át lehet alakítani. Tervezésben, átalakításban és akár kivitelezésben is tud segíteni a jelenlegi tulajdonos.4,1 m belmagasságának köszönhetően állógaléria is kialakítható, jelenleg egy cca 7 nm galéria növeli tovább a teret, ahol a belmagasság fent 180 cm.A lakás fűtése héra típusú cserépkályhával működik , míg a víz melegítés gázbojlerrel van megoldva.A házról:- az épület külső és belső homlokzata átlagos, a kapualj renovált, leburkolt állapotú- az udvar igazán zöldnek mondható - nővényesített, fás.- a lakóközösség igényes, gondos odafigyelésüknek köszönhetően pedig a társasház rendezett pénzügyi kerettel rendelkezik, közös képviselője kiváló, az utóbbi években több pályázatot elnyert. - a házban kamera rendszer lett kiépítve, a zöld udvar is a felújítás részeként valósult meg volt. - parkolás közterületen fizetős, bejelentett kerületi várakozási engedéllyel ingyenesKörnyezetA Orczy negyed környéke egyre frekventáltabb, hiszen a a Nemzeti Közszolgálati Egyetem mellett, a Ludovika, Nagyvárad tér is a közelében van.A lakás elhelyezkedése kitűnő közlekedési lehetőségeket kínál, hiszen a közeli busz- és villamosmegállók révén könnyedén elérheti 10 perc alatt Budapest bármely pontját.Buszmegálló a ház közelében, villamos és metró 5-10 percre.A Corvin negyed és Blaha Lujza tér 15 perc sétára található, Teleki téri Lidl néhány percre, piac szintén.Az ingatlan az egyetemek közelsége miatt könnyen ki is adható.A lakás tehermentes és akár azonnal is birtokba vehető.
További adatok
Telekterület: -
Kert mérete: -
Erkély mérete: -
Felszereltség: -
Parkolás: -
Kilátás: utcai
Egyéb extrák:  
-
Hirdető adatai
Hirdető neve: Otthon Centrum
Kapcsolattartó: Kondász Annamária
Hirdető telefonszáma: +36 70 412 4456
Honlap: -