Budapest, XVI.kerület
 

Ingatlan adatai
Irányár: 146 000 000 Ft
Típus: lakás (újépítésű)
Kategória: eladó
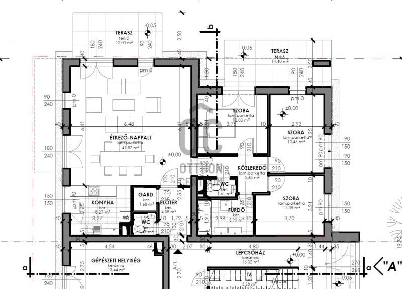
Alapterület: 119 m2
Fűtés: -
Állapota: új
Szobák száma: 4
Építés éve: 2026
Szintek száma: -
Részletes leírás
XVI kerület közkedvelt, Zuglóhoz közeli részén eladó új építésű lakások! Egymás mellett épül 2db öt lakásos társasház, egy zöld övezeti új építésű modern környezetben. Ez a lakás az A épület földszintjén található, négy szobás, kertkapcsolatos (225m2) ingatlan, ami ritkaságnak számít.A lakásokhoz külön vásárolható garázsbeálló tárolóval, amiknek az együttes ára 8,5 millió forint. Igény esetén még felszíni, nyitott beálló vásárlására is van lehetőség, ennek ára 4 millió forint.Főbb paraméterek:- tégla építés- modern, műanyag 3 rétegű nyílászárók- hőszivattyús fűtés- választható burkolatok, szaniterekA házak 2026 IV. negyedévére készülnek el, nagy előny, hogy a vevő a saját ízlése és igénye szerint alakíthatja ki új otthonát.Részletesebb információkért, részletes műszaki tájékoztatásért keressen bizalommal!
További adatok
Telekterület: -
Kert mérete: -
Erkély mérete: 26 m2
Felszereltség: -
Parkolás: -
Kilátás: kertre néző
Egyéb extrák:  
-
Hirdető adatai
Hirdető neve: Otthon Centrum
Kapcsolattartó: Incze Róbert
Hirdető telefonszáma: +36 70 716 8121
Honlap: -