Budapest, I.kerület
 

Ingatlan adatai
Irányár: 419 000 000 Ft
Típus: lakás (tégla)
Kategória: eladó
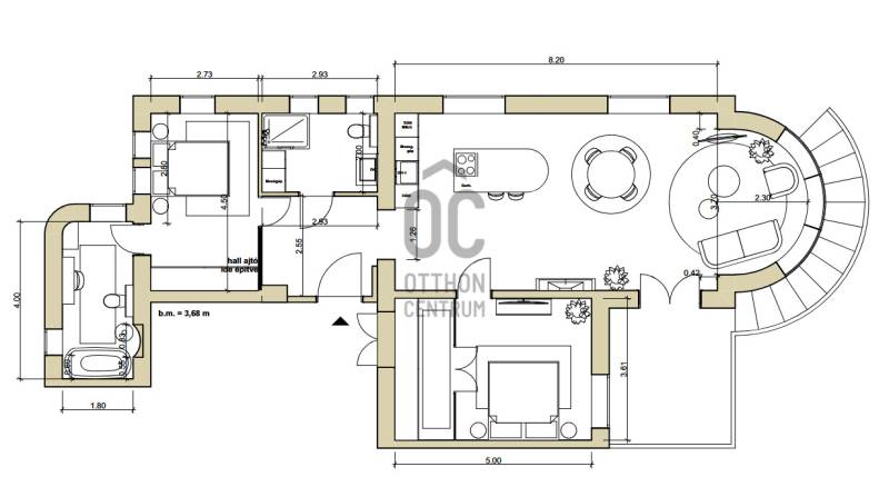
Alapterület: 93 m2
Fűtés: házközponti egyedi méréssel
Állapota: -
Szobák száma: 3
Építés éve: 1930
Szintek száma: -
Részletes leírás
**PANORÁMÁS, EXKLUZÍV GELLÉRTHEGYI ÉKSZER OTTHON KERTTEL ÉS TERASSZAL – ELADÓ**Ez az INGATLAN RITKASÁG a Gellért-hegy LEGSZEBB utcájában, egyik leghíresebb TÖRTÉNELMI villaépületének földszintjén várja új tulajdonosát! A lakás különleges értékeit a PÁRATLAN DUNA-PARLAMENT-BUDAI vár-LÁNCHÍD PANORÁMA, valamint a műemléki hangulat és a MODERN LUXUS ötvözete adja.A teljes körű FELÚJÍTÁSBAN magas színvonalú MŰSZAKI tartalom és kivételes ESZTÉTIKAI kivitelezés valósult meg. A vadonatúj KLÍMA- és FŰTÉSRENDSZER, a teljesen új ELEKTROMOS hálózat, a PRÉMIUM vízvezetékek és a két KÜLÖN FÜRDŐSZOBA kényelme maximális ÉRTÉKÁLLÓSÁGOT jelent.A VILÁGOS és tágas nappali-konyha tér különleges fa BURKOLATA, egyedileg gyártott, teljesen GÉPESÍTETT konyhája EREDETI gránit pulttal, valamint műemléki, restaurált BOROVI FENYŐ nyílászárók jellemzik az otthont.A lakás 2 HÁLÓSZOBÁJA ideális elosztású – a nagyobbikhoz egy WELLNESS hangulatú, szabadonálló kádas és épített zuhanyzós fürdő tartozik. A TERASZRÓL íves lépcső vezet le a több mint 300 m²-es GYÖNYÖRŰ KERTBE, mely szokásjog alapján kizárólag a lakók használatában áll.Elhelyezkedésének köszönhetően a természet KÖZELSÉGE (pár lépés az erdő és sétány), az EGYEDI PANORÁMA és a műemléki környezet összhangja teszi ezt az ingatlant KIVÉTELES, időtálló OTTHONNÁ vagy BEFEKTETÉSSÉ. Tekintse meg és fedezze fel személyesen a Gellérthegy egyik LEGSZEBB LAKÁSÁT!Ne hagyja ki ezt az EGYEDÜLÁLLÓ lehetőséget! Ez az ingatlan tökéletes választás mindazok számára, akik egy stílusos, minőségi otthont keresnek Budapest egyik legimpozánsabb területén.További információért és megtekintés miatt keressen bizalommal a hét bármely napján!
További adatok
Telekterület: -
Kert mérete: -
Erkély mérete: 12 m2
Felszereltség: -
Parkolás: -
Kilátás: utcai
Egyéb extrák:  
-
Hirdető adatai
Hirdető neve: Otthon Centrum
Kapcsolattartó: Szvett Bianka
Hirdető telefonszáma: +36 70 388 5846
Honlap: -