Budapest, XXII.kerület
 

Ingatlan adatai
Irányár: 129 000 000 Ft
Típus: lakás (újépítésű)
Kategória: eladó
Alapterület: 93 m2
Fűtés: -
Állapota: új
Szobák száma: 4
Építés éve: 2026
Szintek száma: -
Részletes leírás
A belváros csendes, aszfaltozott utcájában, zöld környezetében kezd épülni a társasház, amiből már csak 1 lakás eladó.
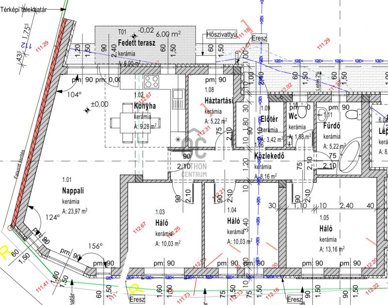
A kétszintes épületben három emeleti és két földszinti lakás lesz kialakítva.Mindegyik lakáshoz egy felszíni gépkocsi beálló tartozik telken belül.Földszinti, Bal oldali lakás 93.47 m2:- tágas amerikai konyhás nappali 33.25 m2-en- 3 különnyíló hálószoba- kádas fürdőszoba wc-vel 5.22 m2- háztartási helyiség 5.22 m2- külön wc kézmosóval 1.98 m2- tároló/ kamra 5.04 m2- előszoba 3.42 m2- közlekedő: 8.16 m2- fedett terasz 6 m2A projekt kiemelkedő műszaki tartalommal rendelkezik:
- 30 cm-es Porotherm tégla, 10 cm-es Porotherm válaszfalak
- 15 cm-es grafitos homlokzati hőszigetelés
- 12 cm lépésálló szigetelés, 25 cm kőzetgyapot szigetelés a födémen
- Háromrétegű nyílászárók, kívül barna, belül fehér színűek
- Mindenhol padlófűtés lesz, a melegvízről a fűtésről hőszivattyús rendszer gondoskodik
- Redőnytokok, beltéri ajtók, hideg- meleg burkolatok már a vételárban

Abszolút Friss megbízás a piacon!
Az építkezés márciusban kezdődik várható befejezése 2026. év vége.
További adatok
Telekterület: -
Kert mérete: -
Erkély mérete: 6 m2
Felszereltség: -
Parkolás: -
Kilátás: kertre néző
Egyéb extrák:  
-
Hirdető adatai
Hirdető neve: Otthon Centrum
Kapcsolattartó: Plaschil Róbert
Hirdető telefonszáma: +36 70 469 3436
Honlap: -