Bács-Kiskun megye, Kecskemét
 

Ingatlan adatai
Irányár: 11 900 000 Ft
Típus: telek
Kategória: eladó
Alapterület: 1 070 m2
Fűtés: -
Állapota: -
Szobák száma: -
Építés éve: -
Szintek száma: -
Részletes leírás
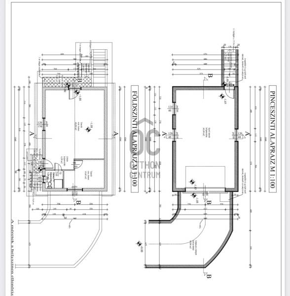
Kecskemét–Hetényegyháza nyugodt, csendes részén 1070 nm-es telek eladó, osztatlan közös tulajdonban, házszámmal rendelkezik, meglévő építési engedélyekkel, gazdasági épület építésére.Tervezett hasznos alapterületek:- pinceszint: 60,00 m²- földszint: 58,98 m²Főbb jellemzők:- csendes, nyugodt környezet- 1070 nm-es telek- osztatlan közös tulajdon- házszámmal rendelkező ingatlan- meglévő építési engedélyek- gazdasági épület építhető- teljes tervdokumentáció és műszaki leírás kérésre bemutatásra kerül- közművek közül villany a telken- az értékesítés kifüggesztési eljárás kötelesAjánlott mindazoknak, akik jól előkészített, jogilag rendezett lehetőséget keresnek Hetényegyháza kedvelt részén.Bővebb információkért keressen bizalommal!Kecskemét, Hetényegyháza, telek, gazdasági épület, engedély,
További adatok
Telekterület: 1 070 m2
Kert mérete: -
Erkély mérete: -
Felszereltség: -
Parkolás: -
Kilátás: -
Egyéb extrák:  
-
Hirdető adatai
Hirdető neve: Otthon Centrum
Kapcsolattartó: Boros Julianna
Hirdető telefonszáma: +36 70 388 5866
Honlap: -