Budapest, X.kerület
 

Ingatlan adatai
Irányár: 61 900 000 Ft
Típus: lakás (tégla)
Kategória: eladó
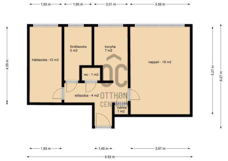
Alapterület: 49 m2
Fűtés: gáz (konvektor)
Állapota: -
Szobák száma: 2
Építés éve: 1976
Szintek száma: -
Részletes leírás
Kiváló lehetőséget kínálunk egy praktikus elrendezésű, 49 m²-es, 2 külön nyíló szobás lakás megvásárlására egy csendes, zöldövezeti részen, ahol a nyugalom és a kiváló közlekedés kéz a kézben járnak. A külön nyíló helyiségek révén a lakás tökéletes választás pároknak, kisgyermekes családoknak, de akár befektetési célra is ideális.Főbb jellemzők:Teljes alapterület: 49 m²Szobák száma: 2Világos, kádas fürdőszobaPolcos kamra, amiben minden szükséges eszköz elférMinden szoba külön nyílikTájolás: DK (délkeleti fekvés – világos, napfényes terek)Alacsony közös költség: 12.500 FtA felújítás során a hangszigetelt ablakokra redőnyök kerületek, valamint a szobákban újabb konvektorok is helyet kaptak. A teljes lakás új burkolatokat kapott és egy jobb elrendezéssel több helyiség került kialakításra. A társasház frissen lett felújítva, amivel a szigetelést és az ablakok cseréjét is kipipálták.Környezet és elhelyezkedés:A lakás csendes utcában, jó közlekedéssel bíró, zöldövezeti környezetben helyezkedik el, így tökéletes választás lehet mindazoknak, akik nyugalomra, ugyanakkor könnyű elérhetőségre vágynak.Érdeklődjön most, ne maradjon le erről a remek lehetőségről!
További adatok
Telekterület: -
Kert mérete: -
Erkély mérete: -
Felszereltség: -
Parkolás: -
Kilátás: udvari
Egyéb extrák:  
-
Hirdető adatai
Hirdető neve: Otthon Centrum
Kapcsolattartó: Antal-Bacso Emese
Hirdető telefonszáma: +36 70 388 5011
Honlap: -