Budapest, III.kerület
 

Ingatlan adatai
Irányár: 67 900 000 Ft
Típus: lakás (panel)
Kategória: eladó
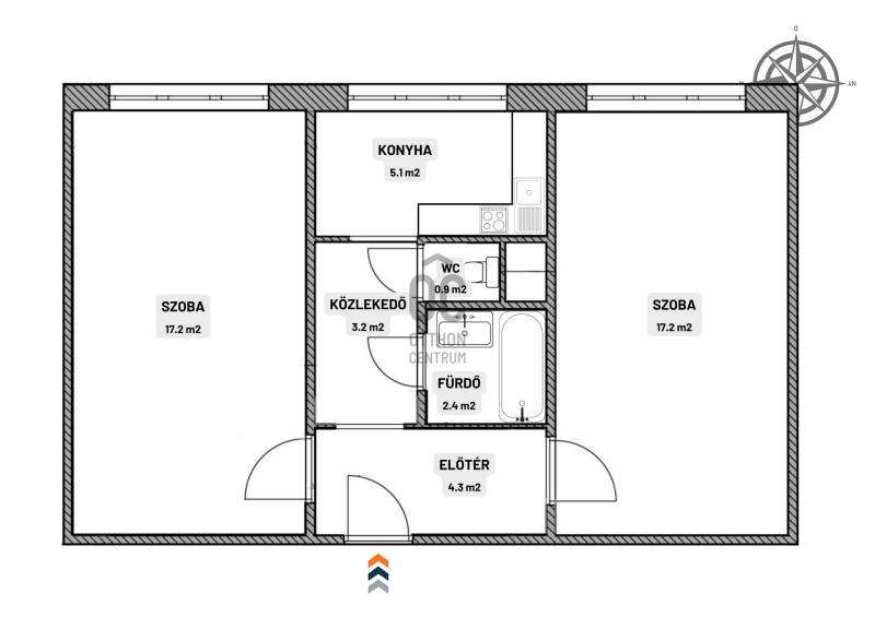
Alapterület: 50 m2
Fűtés: távfűtés
Állapota: -
Szobák száma: 2
Építés éve: 1995
Szintek száma: -
Részletes leírás
Új tulajdonosát keresi a III. kerületben, Békásmegyeren, csendes és zöld környezetben egy 50 m2-es, 2 különnyíló szobás, világos, jó állapotú panellakás, karbantartott társasházban. Ha élhető, jól felszerelt, biztonságos és természetközeli környéken szeretné megtalálni új otthonát, ezt feltétlenül nézze meg!KÖRNYÉK és KÖZLEKEDÉS:- Budapest III. kerülete, Békásmegyeri lakótelep Duna felőli oldala.- Kiváló infrastruktúrával és közlekedéssel rendelkező, nagyon szerethető és biztonságos környék.- Bicikliút vezet a Római-part felé, közel van a Hármashatár-hegy, Csillaghegyi strand és a budai hegyek is.- A lakástól néhány perce elérhető minden, ami a hétköznapokhoz szükséges.- A 204, 296, 134, 34-es buszok megállója és a H5-ös HÉV pár perc sétatávolság.- A ház közvetlen környezetében bölcsőde, óvoda és iskola, orvosi rendelő, gyógyszertár is rendelkezésre áll.- A bevásárlást a közelben található Auchan, Prima, Spar, Lidl és Aldi biztosítja.TÁRSASHÁZ:- 1980-es években épült, 10 szintes, liftes panel épület.- Műszakilag rendszeresen karbantartott, gondozott társasház.- Lépcsőháza rendezett, a lift felújítása megtörtént, 2026 tavaszán a szigetelés is kivitelezésre került.- Lakóközössége kulturált, csendes, vegyes korosztály.LAKÁS:- Ötödik emeleti, 50 m2-es, 2 szobás, világos és jó elosztású ingatlan.- Műszakilag és esztétikailag is jó állapotú lakás.- Elosztása: előszoba-közlekedő, konyha+étkező, 2 szoba, fürdőszoba, külön WC.- A nappali és a hálószoba tájolása déli, a lakás világos és logikusan bútorozható terekkel rendelkezik.- A szobák ablakai fákra és zöld területre néznek.- A lakásban több nagy méretű beépített szekrény segíti a helykihasználást és tárolást.- Az ablakos konyha szintén beépített bútorokkal ellátott.- A szobák laminált parkettával, a közlekedő, konyha, fürdőszoba járólappal burkolt.- Fűtése távfűtés egyedi méréssel, a hő-leadást radiátorok biztosítják.- Közös költsége 12.500 Ft/hó, víz és villanyfogyasztás is egyedi mérés alapján fizetendő.- Az energetikai tanúsítvány készítése folyamatban van, amint rendelkezésre áll, azzal a hirdetés frissítésre kerül.AZ INGATLAN MEGTEKINTHETŐ:- Személyesen- Online személyes bejelentkezésselFINANSZÍROZÁSI KÉRDÉSEKBEN – ONLINE ÜGYINTÉZÉSSEL IS – SEGÍTÜNK!- Bank-független hitelcenterünk díjmentesen versenyezteti az összes bank és hitelintézet ajánlatát.- Önnek csak annyi a dolga, hogy egyeztet munkatársunkkal, majd kiválasztja a hosszú távon is legkedvezőbb konstrukciót.- Szakértőink 20 év tapasztalattal, fogyasztóbarát lakáshitelekkel, babaváró hitellel és teljes körű CSOK Plusz és OTTHON START program ügyintézéssel várják.- Időpont-egyeztetéssel munkaidő után is elérhetők.Kérdéseire szívesen válaszolok, kérem hívjon bizalommal!
További adatok
Telekterület: -
Kert mérete: -
Erkély mérete: -
Felszereltség: -
Parkolás: -
Kilátás: utcai
Egyéb extrák:  
-
Hirdető adatai
Hirdető neve: Otthon Centrum
Kapcsolattartó: Alföldi-Szabó Erika
Hirdető telefonszáma: +36 70 412 3181
Honlap: -