Somogy megye, Siófok
 

Ingatlan adatai
Irányár: 129 000 000 Ft
Típus: ház
Kategória: eladó
Alapterület: 116 m2
Fűtés: gáz (cirko)
Állapota: -
Szobák száma: 5
Építés éve: 2019
Szintek száma: -
Részletes leírás
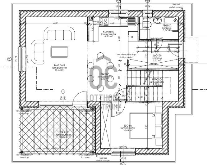
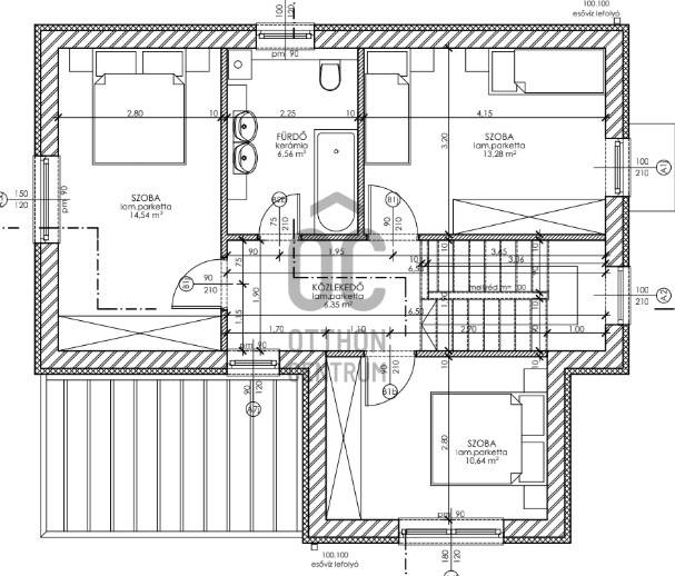
Modern családi ház eladó Siófok legszebb kertvárosi részén – Foki-hegyen!Siófok egyik legkedveltebb, csendes és biztonságos kertvárosi övezetében, Foki-hegyen, eladó egy 2019-ben épült, modern, kiváló állapotú, kétszintes, 4 hálószobás családi ház, intim, zárt kerttel és hangulatos, déli fekvésű terasszal.Az ingatlan a város egyik ötlakásos, kerítéssel körbevett lakóparkjának belső részén helyezkedik el – így teljesen védett, kíváncsi szemek elől elzárt, mégis mindenhez közel. Főbb jellemzők:-Masszív, modern építés: 30 cm tégla falazat + 10 cm hőszigetelés-Fűtés-hűtés: Bosch kazán + Daikin inverteres klíma mindkét szinten-Prémium belső kialakítás: egyedi méretre gyártott konyhabútor Gorenje gépekkel, beépített szekrények-Nyílászárók: redőny + szúnyogháló minden ablakon-Különálló, zárható garázs (vételára: 6 M Ft) Elrendezés (praktikus, jól lakható kialakítás):Földszint (58,28 m² + 13,35 m² terasz):-előtér, wc + zuhanyzó-konyha, étkező, nappali-ritkaságnak számító földszinti hálószoba – idősebbeknek is ideális-közvetlen kijárat a teraszra és a kertbeEmelet (51,37 m²):-három tágas hálószoba-fürdőszoba káddal és zuhanyzóval-közlekedőÖsszes hasznos terület: 109,65 m² + 13,35 m² terasz Kert és környezet:A gondozott, dísznövényekkel és kerti tóval körbevett kert nyugodt pihenést biztosít az egész családnak.A ház déli fekvésű terasza kiváló helyszín reggeli kávéhoz, családi étkezésekhez vagy esti kikapcsolódáshoz. Miért különleges ez az ingatlan?Teljes intimitás és biztonság a zárt lakóparkon belülModern, energiahatékony kialakításKiváló elosztás – nagycsaládosoknak, idősebbeknek és nyaralónak is tökéletesKönnyű beleszeretni! – Aki személyesen is megnézi, megérzi az otthon melegségét és a hely különleges hangulatát.Költözz saját otthonba, illeték nélkül és CSOK Plusz 3%-os kamattal – most érdemes lépni!Ne halogasd az álmaid megvalósítását – ez a modern, minden igényt kielégítő otthon most ritka lehetőség Siófok egyik legkeresettebb részén! További információ és megtekintés:Érdeklődj még ma, és foglald le ezt a különleges, azonnal költözhető ingatlant!Siófo,#ház,#garázs,#kert,# hitel,#
További adatok
Telekterület: 348 m2
Kert mérete: 348 m2
Erkély mérete: 14 m2
Felszereltség: -
Parkolás: -
Kilátás: -
Egyéb extrák:  
-
Hirdető adatai
Hirdető neve: Otthon Centrum
Kapcsolattartó: Horváthné Virág Tímea
Hirdető telefonszáma: +36 70 469 3981
Honlap: -