Budapest, XI.kerület
 

Ingatlan adatai
Irányár: 82 900 000 Ft
Típus: lakás (panel)
Kategória: eladó
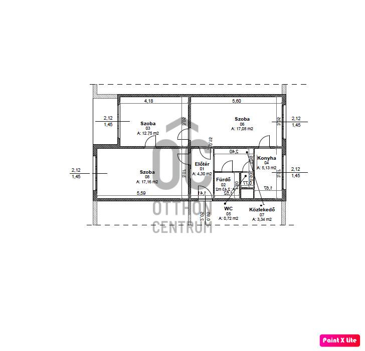
Alapterület: 65 m2
Fűtés: távfűtés
Állapota: -
Szobák száma: 3
Építés éve: 1970
Szintek száma: -
Részletes leírás
Eladó a XI. kerület frekventált, mégis meglepően csendes részén, a Fehérvári úton, az Etele út közelében egy 5. emeleti, 65 m²-es, 3 szobás, erkélyes panellakás.A lakás főbb jellemzői:Tágas elosztás: 3 külön nyíló szoba + dolgozósarok – ideális családoknak vagy otthoni munkához.Csendes, világos: zöld parkra néző ablakok a konyhában és a dolgozószobában.Modern nyílászárók: minden ablak korszerűre cserélve, a nappali légkondicionált.Erkély: ideális reggeli kávézáshoz vagy esti pihenéshez.Rendezett társasház: hőszigetelt épület, korszerűsített strang és vezetékek, új liftek, tiszta, karbantartott lépcsőház. Elhelyezkedés:Kiváló közlekedés: pár perc sétára a fonódó villamoshálózat, metró (M4), buszjáratok.Széles körű infrastruktúra: boltok, piac, gyógyszertár, orvosi rendelő, iskolák, óvodák – minden karnyújtásnyira.Parkolás: a környéken bőséges és ingyenes parkolási lehetőség.További előnyök:A lakás tehermentes, gyorsan birtokba vehető.Igény szerint tisztasági festés után költözhető, vagy saját ízlés szerint felújítható.Befektetésnek is ideális: a környék népszerű az albérlők körében is.!!3%-os Otthon Start hitelprogram teljes mértékben igénybe vehető.!!Ár-érték arányban kivételes lehetőség Budán, a város egyik legjobban fejlődő kerületében!Ne maradjon le erről a remek ajánlatról – hívjon bizalommal és tekintse meg személyesen!Ez az ingatlan a \"Felező csomag\" megbízási portfólióhoz tartozik. Részletek az Otthon Centrum weboldalán.
További adatok
Telekterület: -
Kert mérete: -
Erkély mérete: 3 m2
Felszereltség: -
Parkolás: -
Kilátás: kertre néző
Egyéb extrák:  
-
Hirdető adatai
Hirdető neve: Otthon Centrum
Kapcsolattartó: Opoldusz Soma
Hirdető telefonszáma: +36 70 716 9961
Honlap: -