Budapest, XV.kerület
 

Ingatlan adatai
Irányár: 24 800 000 Ft
Típus: lakás (tégla)
Kategória: eladó
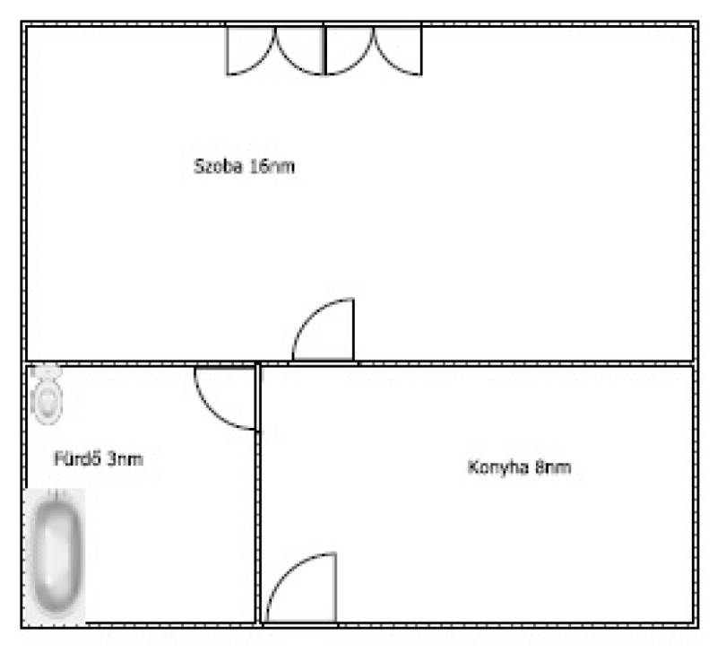
Alapterület: 27 m2
Fűtés: gáz (konvektor)
Állapota: felújítást igényel
Szobák száma: 1
Építés éve: 1928
Szintek száma: -
Részletes leírás
ELADÁSRA kínálunk a XV. kerületben,egy 27 nm-es,FELÚJÍTANDÓ, garzon lakást.A lakás főbb jellemzői:- 1930-as években épült tégla épületben található- 8 lakásos társasház, (közös udvarhasználattal)- fűtése gázkonvektor- a rezsi egyedi mérőórák alapján van elszámolva- közös költség 11 000 ft- tartozik a lakáshoz egy cc: 4nm-es tároló ami a kert végében találhatóAjánlom, egyedül állóknak, pároknak, befektetőknek, illetve, kiváló lehetőség azok számára is, akik szeretnék megvalósítani saját elképzelésüket és értéket teremteni az ingatlanpiacon.Parkolás utcán, közterületen ingyenes.Várom hívásukat, akár hétvágén is.
További adatok
Telekterület: -
Kert mérete: -
Erkély mérete: -
Felszereltség: -
Parkolás: -
Kilátás: utcai
Egyéb extrák:  
-
Hirdető adatai
Hirdető neve: GDN Ingatlanhálózat
Kapcsolattartó: Béres Tünde
Hirdető telefonszáma: +36-20-402-6896
Honlap: -