Budapest, IV.kerület
 

Ingatlan adatai
Irányár: 179 000 000 Ft
Típus: lakás (tégla)
Kategória: eladó
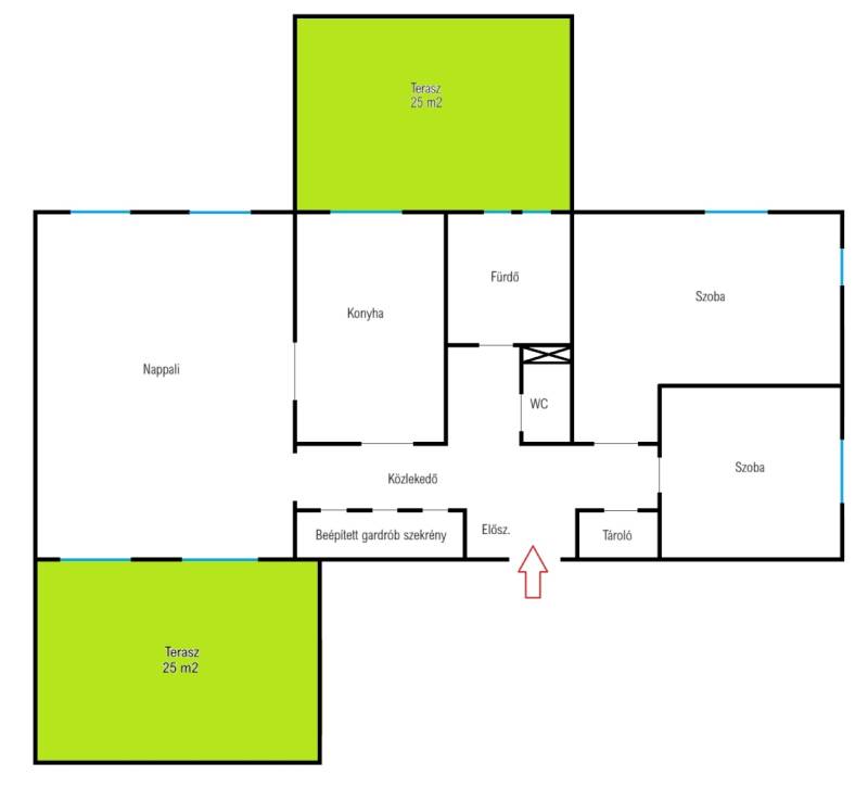
Alapterület: 105 m2
Fűtés: gáz (cirko)
Állapota: -
Szobák száma: 3
Építés éve: 2002
Szintek száma: 4
Részletes leírás
RITKASÁG!3 SZOBÁS PENTHOUSE LAKÁS, PANORÁMÁVAL, DUPLA TERASSZAL, SZAUNÁVAL, IGÉNY ESETÉN TEREMGARÁZS BEÁLLÓVAL!!IV. kerületben, kertvárosi környezetben, kitűnő közlekedés és ellátottság mellett, csendes utcában, Megyer lakóparkban, 2002-ben, magas műszaki színvonalon épült, 4.szintes, exkluzív megjelenésű, társasház, legfelső szintjén penthouse tipusú, dupla teraszos (2X25 nm), panorámás kilátású, kiváló elosztású, 105 nm-es, 3 szobás, ablakos konyhás, napos-világos K-NY-i fekvésű, alacsony fenntartású, közös költség felújítási alappal: 21.000 Ft, új 2025-ben cserélt kondenzációs gázkazán fűtésű, egyedi mérésű, jó állapotú, klimatizált, azonnal birtokba vehető, tehermentes lakás, beépített gépesített konyhával, infra szaunával, a teraszokon kiépített öntözőrendszerrel, igényesen kialakított üveges téli kerttel, igény esetén teremgarázs beállóval, melynek ára a vételáron felül +5 millió Ft, kulturált lakóközösségű házban eladó.A környék abszolút biztonságos, infrastruktúrája és közlekedése kitűnően ellátott.Közelben található: oktatási intézmények, élelmiszerbolt, Lidl, játszótér, sportközpont. Újpest városközpont kényelmes közlekedéssel 10 perc alatt elérhető! Buszmegálló 100 méterre!!Dunakeszi Auchan autóval 5 percre.Ezt a lakást érdemes megnézni!További részletekért várom megtisztelő hívását. (hétvégén is)EA
További adatok
Telekterület: -
Kert mérete: -
Erkély mérete: 50 m2
Felszereltség: -
Parkolás: -
Kilátás: panorámás
Egyéb extrák:  
-
Hirdető adatai
Hirdető neve: GDN Ingatlanhálózat
Kapcsolattartó: Kiss Márk
Hirdető telefonszáma: +36-30-884-7891
Honlap: -