Veszprém megye, Mindszentkálla
 

Ingatlan adatai
Irányár: 129 900 000 Ft
Típus: ház
Kategória: eladó
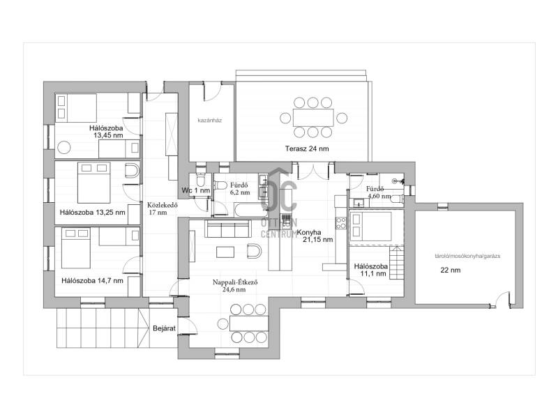
Alapterület: 140 m2
Fűtés: gáz (cirko)
Állapota: -
Szobák száma: 5
Építés éve: 1955
Szintek száma: -
Részletes leírás
Eladó egy gyönyörűen felújított, önálló családi ház Mindszentkállán, a csodálatos Káli-medence központjában!Hasznos alapterület: 140 m²Telek mérete: 809 m²Az eredetileg 1950-es években épült, földszintes, kő falazatú ingatlan 2016-ban teljes felújításon esett át, azóta modern, kényelmes otthont kínál. A ház praktikus beosztású: tágas nappali-étkező és amerikai konyha gondoskodik a közös élményekről, a kapcsolódó terasz pedig tökéletes helyszín baráti vagy családi összejövetelekhez.•4 szoba és 2 fürdőszoba – ideális két generációnak, vagy vendégháznak•Tetőtér beépíthető – jelenleg egyterű, de további helyiségek kialakíthatók•809 m² kert, 5 autónak parkoló – jelenleg játszótérrel a legkisebbek számára•Háztartási helyiség (22 m²) – külső bejárat, akár mosókonyha vagy tároló is lehet•Teljes közmű, gázkazános fűtés radiátorokkalKiváló választás nagycsaládosoknak, idősebbek számára kényelmes földszintes kialakításával, de befektetőknek is ajánljuk, hiszen vendégházként, apartmanként is jól hasznosítható. A ház igazi minőségi otthon, ahol minden részletre ügyeltek.A hangulatos falu központja – bolt, étterem, fagyizó – mindössze néhány perces séta, így autóra sincs szükség a mindennapi ügyintézéshez!Amennyiben kérdése merül fel az ingatlannal kapcsolatban vagy szeretné azt megtekinteni, kérem keressen az alábbi elérhetőségek egyikén!
További adatok
Telekterület: 809 m2
Kert mérete: 809 m2
Erkély mérete: 24 m2
Felszereltség: -
Parkolás: -
Kilátás: -
Egyéb extrák:  
-
Hirdető adatai
Hirdető neve: Otthon Centrum
Kapcsolattartó: Csöndes Attila
Hirdető telefonszáma: +36 70 469 3471
Honlap: -