Heves megye, Domoszló
 

Ingatlan adatai
Irányár: 36 250 000 Ft
Típus: ház
Kategória: eladó
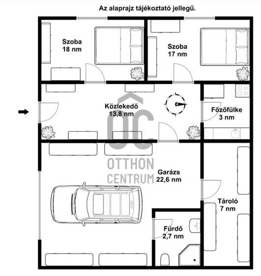
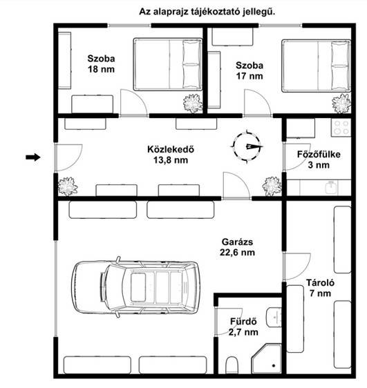
Alapterület: 171 m2
Fűtés: gáz (cirko)
Állapota: felújítást igényel
Szobák száma: 5
Építés éve: 1976
Szintek száma: -
Részletes leírás
Eladó téglaépítésű családi ház Domoszlón – akár két generációnak is!Domoszlón eladó egy 170 nm-es, téglaépítésű családi ház 602 nm-es telken, amely kialakításának köszönhetően akár két generáció együttélésére is alkalmas.Az ingatlanban 2 fürdőszoba található. A garázs közvetlenül a lakótérből megközelíthető, ami különösen komfortos megoldás a hidegebb téli napokon. A telken külön tároló is rendelkezésre áll.Az alsó szint felújításra szorul, míg az emeleti lakórész azonnal birtokba vehető akár, így a felső szint használata mellett az alsó szint az új tulajdonos igényei szerint, akár fokozatosan is felújítható.Csendes környezetben elhelyezkedő, jól alakítható otthon, amely kiváló lehetőség nagycsaládosoknak vagy többgenerációs megoldást keresőknek.Miért jó Domoszlón élni?Domoszló egy csendes, zöld környezetű település Heves megyében, a Mátra lábánál, amely ideális választás azok számára, akik nyugodt falusi életet keresnek, de nagyobb városok sem túl messze vannak. A település környéke természetközeli, túraútvonalakkal, horgásztóval és szép panorámákkal várja az aktív pihenést kedvelőket, miközben a mindennapi ellátás — iskola, óvoda, bölcsőde és alapvető szolgáltatások — helyben elérhetők. Eger — közúton körülbelül 30–32 km, autóval nagyjából 30–35 perc alatt elérhető, ahol szélesebb szolgáltatási-, kulturális- és egészségügyi kínálat, bevásárlási lehetőségek és fürdők találhatók. Gyöngyös — körülbelül 19–20 km távolságra fekszik, ami 20–25 perc alatt autóval kényelmesen elérhető; itt további oktatási, egészségügyi és szabadidős lehetőségek állnak rendelkezésre. Domoszló ideális választás, ha nyugodt, természetközeli élettérre vágysz, miközben a nagyvárosi szolgáltatások egy nagyjából félórás autóútra elérhetők. A helyi közösségi programok, rendezvények és a falusi életforma hozzájárulnak a jó életminőséghez.Keress bizalommal!
További adatok
Telekterület: 602 m2
Kert mérete: 602 m2
Erkély mérete: 12 m2
Felszereltség: -
Parkolás: -
Kilátás: -
Egyéb extrák:  
-
Hirdető adatai
Hirdető neve: Otthon Centrum
Kapcsolattartó: Nagy Zoltánné Zsani
Hirdető telefonszáma: +36 70 469 3286
Honlap: -