Jász-Nagykun-Szolnok megye, Abádszalók
 

Ingatlan adatai
Irányár: 27 000 000 Ft
Típus: ház
Kategória: eladó
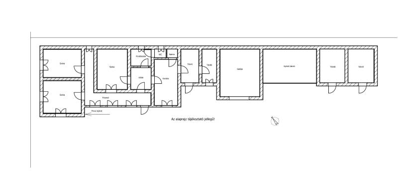
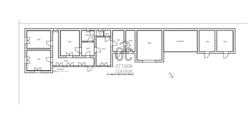
Alapterület: 148 m2
Fűtés: gáz (cirko)
Állapota: -
Szobák száma: 3
Építés éve: 1981
Szintek száma: -
Részletes leírás
Abádszalókon a Tisza-tótól csupán egy kőhajításnyira, egyedülálló lehetőségként, kiváló szerkezeti állapotban lévő alápincézett családi ház nagy melléképülettel és telekkel eladó!A Tisza-tó egyszerre ad meg mindent a kalandvágynak, a szemnek, az érzékeknek, s a gyomornak. A zsibongó strand, a természeti ritkaságok, a horgászat, a vízi sportok, kulturális és szórakoztató programok, valamint a gasztronómia felejthetetlen élményt nyújtanak. A 127 km2 nagyságú Tisza-tó egyedisége abból adódik, hogy egy időben más-más arcát mutatja az idelátogató, pihenni, kikapcsolódni, élményekben gazdagodni vágyó turistáknak. A Tisza-tó több tucat kijelölt túraútvonallal, szakképzett túravezetőkkel várja a természet iránt érdeklődőket. Az eladásra kínált ingatlan a település frekventált helyén található. A 104 m2 hasznos alapterületű épületben három szoba, konyha, fürdőszoba, külön WC és kamra került kialakításra. Ezenfelül van egy 44 m2-es melléképület garázzsal, tárolókkal, illetve állalttartásra alkalmas helyiségekkel.Az eredetileg vályog falazatú épület fel lett újítva, hozzáépítettek két szobát (B38-as téglából), valamint egy pincét is, amelyben a kondenzációs kombi gázkazán, valamint a vegyestüzelésű kazán került elhelyezésre. Az épületben radiátoros központi fűtés lett kiépítve.Az ingatlan összközműves.A házhoz nagy, 4866 m2-es telek tartozik, amelyen veteményeskert és egy kis erdő is várja új tulajdonosát. A nagy telek rengeteg lehetőséget tartogat, hajó(k) tárolására, vagy apartmanok elhelyezésére egyaránt alkalmas. Amennyiben további felvilágosítást szeretne, keressen bizalommal!Teljes körű bankfüggetlen hitel ügyintézéssel és az ingatlan adásvételéhez szükséges ügyvédi háttérrel is állok a vevőjelöltek rendelkezésére.
További adatok
Telekterület: 4 866 m2
Kert mérete: 4 866 m2
Erkély mérete: -
Felszereltség: -
Parkolás: -
Kilátás: -
Egyéb extrák:  
-
Hirdető adatai
Hirdető neve: Otthon Centrum
Kapcsolattartó: Langné Kiss Piroska
Hirdető telefonszáma: +36 70 716 9891
Honlap: -