Zala megye, Alsópáhok
 

Ingatlan adatai
Irányár: 69 990 000 Ft
Típus: ház
Kategória: eladó
Alapterület: 259 m2
Fűtés: gáz (cirko)
Állapota: -
Szobák száma: 7
Építés éve: 1995
Szintek száma: -
Részletes leírás
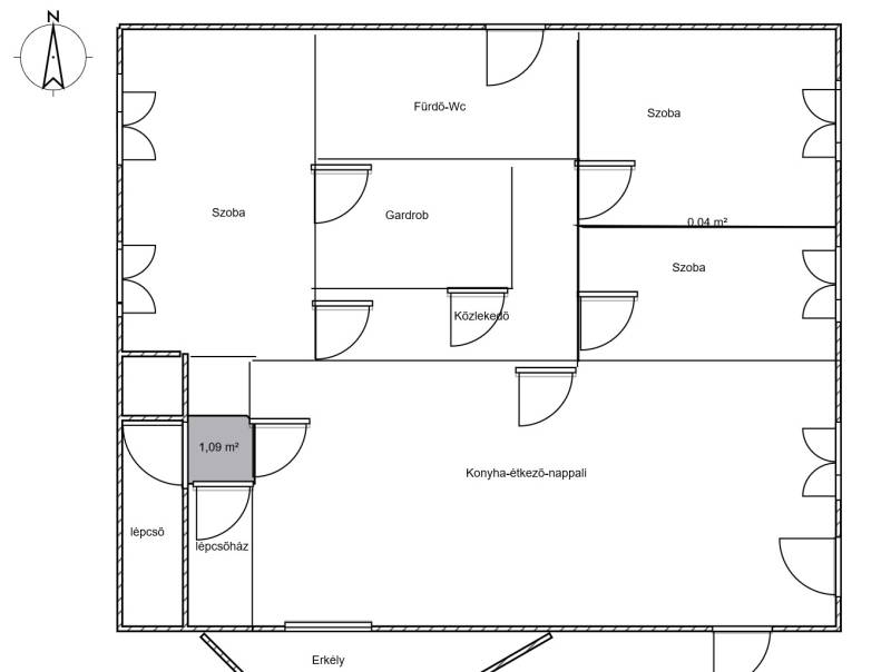
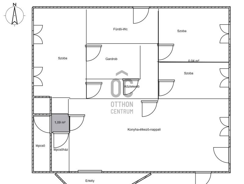
Kiemelt megbízás – kizárólag irodánk kínálatában!Alsópáhok egyik csendes, forgalomtól mentes utcájában kínálom eladásra ezt a kiváló adottságokkal rendelkező, 1995-ben épült, 120 m²-es alapterületű, két szinten összesen mintegy 166 m² lakótérrel rendelkező, teljes egészében alápincézett családi házat.Az ingatlan elosztása ideális akár nagycsaládosoknak, akár két generáció együttélésére:Földszint (88m²):-tágas nappali-konyha-étkező egy légtérben-erkély-3 hálószoba-fürdőszoba/WC-kényelmes gardrób-lépcsőházTetőtér (78 m², teljesen kiépített):-lépcsőház, közlekedő-3 hálószoba-2 erkély-konyha-fürdő/WCPince szint (96 m²):-nagy méretű garázs-tárolóhelyiség-zuhanyzó/WC-kazánház gáz-cirkó és vegyes tüzelésű kazánnalA 445 m²-es telek könnyen karbantartható.Az ingatlan kiváló választás kétgenerációs lakhatásra, kiadásra vagy befektetési céllal egyaránt.Elhelyezkedése kimagasló: Hévíz mindössze 2 km, Keszthely és a Balaton part csupán 6 km távolságra található.Alsópáhok a Nyugat-balatoni térség egyik legkeresettebb települése, ahol a csend és nyugalom találkozik a közeli városok pezsgő kulturális és turisztikai kínálatával. A Hévízi Gyógytó, a Balaton strandjai és Keszthely egész éves programkavalkádja is pár perc alatt elérhető.Ha az ingatlan felkeltette érdeklődését, várom hívását – tekintsük meg együtt ezt a kivételes lehetőséget!Az adatok kizárólag a megbízóink által rendelkezésünkre bocsátott információkon alapulnak.Fentiekre tekintettel, az adatok teljességéért, helyességéért és aktualitásáért nem vállalunk felelősséget.Az árváltozás, adatmódosítás és közbeni értékesítés jogát fenntartjuk, mindezekért jogi felelősséget nem áll módunkban vállalni.
További adatok
Telekterület: 445 m2
Kert mérete: 445 m2
Erkély mérete: 23 m2
Felszereltség: -
Parkolás: -
Kilátás: -
Egyéb extrák:  
-
Hirdető adatai
Hirdető neve: Otthon Centrum
Kapcsolattartó: Poldauf Róbert
Hirdető telefonszáma: +36 70 469 3266
Honlap: -