Jász-Nagykun-Szolnok megye, Tiszafüred
 

Ingatlan adatai
Irányár: 29 900 000 Ft
Típus: ház
Kategória: eladó
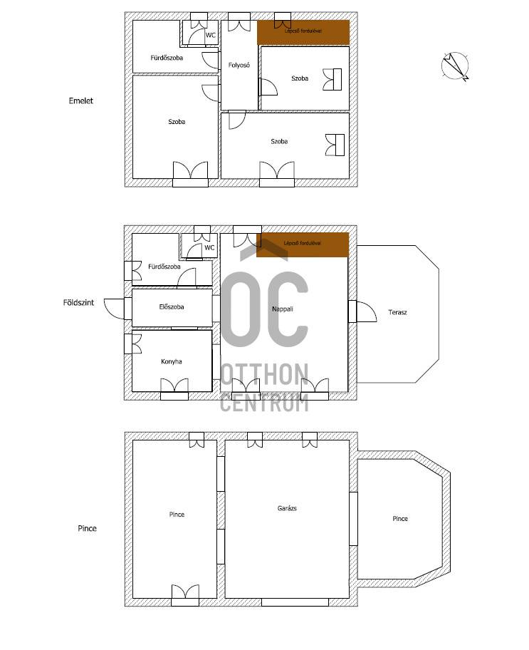
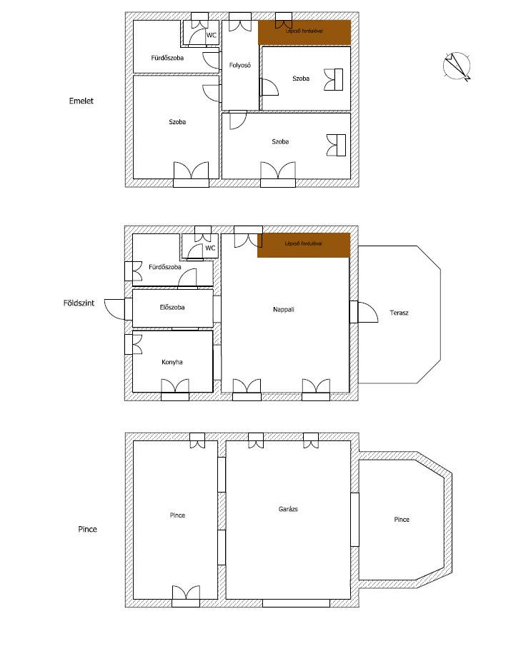
Alapterület: 131 m2
Fűtés: egyéb
Állapota: felújítást igényel
Szobák száma: 4
Építés éve: 1999
Szintek száma: -
Részletes leírás
Az ingatlan Jász-Nagykun-Szolnok vármegye egyik legdinamikusabban fejlődő városában, Tiszafüred üdülőövezetében található, közel a szabadstrandhoz, de mégis csendes környéken.-A 130 m²-es, háromszintes épület egy 561 nm-es sarok telken helyezkedik el.-Az ingatlan három szobát, nappalit, két fürdőszobát, két külön WC-t, konyhát tartalmaz.-Az alagsorban gépkocsi tárolására alkalmas garázs, és bárminek kialakítható két pince helyiség kapott helyet.-A téglaépítésű ház tető alatt, szerkezet kész állapotban van, a nyílászárók és a gépészeti elemek elhelyezésére van szükség.- A villany és víz bevezétésre került, a csatorna és gáz csatlokása telken belül megoldhatóA település turisztikai központként is egyre népszerűbb:-Teljesen körbebiciklizhető Tisza-tó, új kerékpárút Poroszlóig-Megújuló termálstrand, szabadvizi strand, kerékpáros központ-Kiváló éttermek és szolgáltatások a közelbenTovábbi előnyök:-Ingyenes, bankfüggetlen hitelközvetítés-Hétvégén is elérhető értékesítési ügyelet!
További adatok
Telekterület: 561 m2
Kert mérete: 561 m2
Erkély mérete: 15 m2
Felszereltség: -
Parkolás: -
Kilátás: -
Egyéb extrák:  
-
Hirdető adatai
Hirdető neve: Otthon Centrum
Kapcsolattartó: Lang Zsolt
Hirdető telefonszáma: +36 70 412 3651
Honlap: -