Zala megye, Hévíz
 

Ingatlan adatai
Irányár: 74 900 000 Ft
Típus: ház
Kategória: eladó
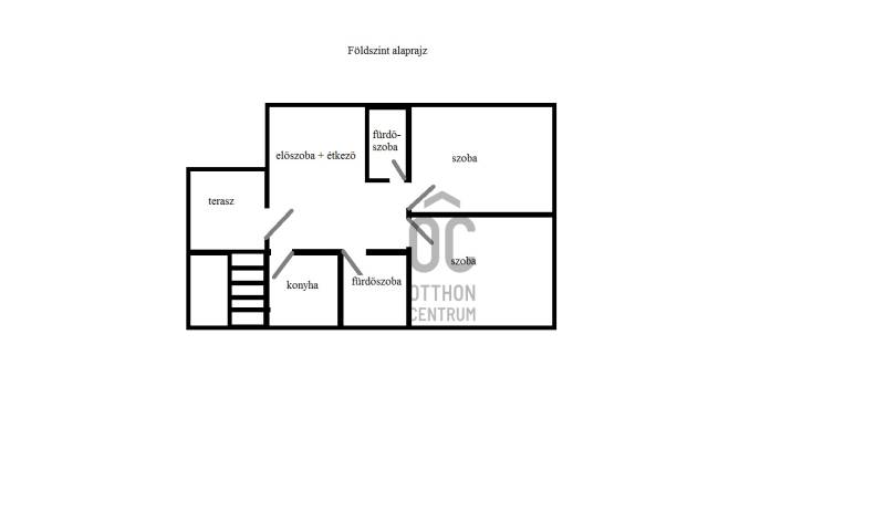
Alapterület: 195 m2
Fűtés: -
Állapota: -
Szobák száma: 8
Építés éve: 1960
Szintek száma: -
Részletes leírás
Az ingatlan főbb jellemzői:- a családi ház nagysàga: 195 m2- a telek mérete: 560 m2- az ingatlan Hévíz frekventált részén helyezkedik el - külső nyílászárók: műanyag- fűtése: házközponti, gáz(kazán) - klíma rendelkezésre áll- akár bútorozottan, azonnal költözhető- önálló garázzsal rendelkezik, mely szintén a vételár részét képezi- az ingatlan tehermentes- szintenként külön bejárattal rendelkezik, így több generáció számára is kitűnő választásAmennyiben az ingatlan felkeltette érdeklődését, hívjon bizalommal!Az adatok kizárólag a megbízóink által rendelkezésünkre bocsátott információkon alapulnak. Fentiekre tekintettel az adatok teljességéért, helyességéért és aktualitásáért nem vállalunk felelősséget. Az árváltozás, adatmódosítás és közbeni értékesítés jogát fenntartjuk, mindezekért jogi felelősséget nem áll módunkban vállalni.
További adatok
Telekterület: 560 m2
Kert mérete: 560 m2
Erkély mérete: 20 m2
Felszereltség: -
Parkolás: -
Kilátás: -
Egyéb extrák:  
-
Hirdető adatai
Hirdető neve: Otthon Centrum
Kapcsolattartó: Horváth Anita
Hirdető telefonszáma: +36 70 412 3361
Honlap: -