Nógrád megye, Rétság
 

Ingatlan adatai
Irányár: 74 900 000 Ft
Típus: ház
Kategória: eladó
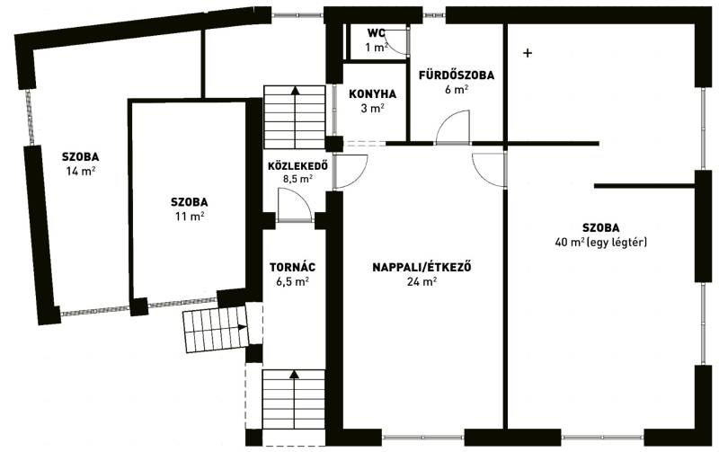
Alapterület: 110 m2
Fűtés: gáz (cirko)
Állapota: -
Szobák száma: 4
Építés éve: 1965
Szintek száma: -
Részletes leírás
Az ingatlanpiac folyamatosan változik, és most egy különleges lehetőséget kínálunk Önnek, amely ideális választás lehet kereskedelmi vállalkozása számára. A Nógrád vármegye szívében, Rétság városában található ez a felújított családi ház, amely nem csupán egy ingatlan, hanem egy lehetőség a jövőjére nézve. Az ingatlan alapterülete 110 négyzetméter, amely 1926 négyzetméteres telekkel rendelkezik, így elegendő teret biztosít a kreatív elképzelések megvalósítására, legyen szó akár egy új vállalkozásról, vagy egy családi otthon kialakításáról. A ház belső elrendezése négy szobát és egy fürdőszobát tartalmaz, így ideális választás lehet azok számára, akik tágas teret keresnek. A garázsban egy autó kényelmesen elfér, ezáltal a parkolás soha nem jelenthet problémát. Az ingatlan állapota jó, a fűtés gáz (cirko) rendszerrel megoldott, ami nemcsak kényelmes, hanem gazdaságos megoldást is jelent a téli hónapokban.A telken található még egy 500nm-es raktár, és iroda együttes, teljes közművesítéssel, ami számos lehetőséget kínál a hasznosításra az új tulajdonosnak. A környék ellátottsága kiváló, számos bolt, szolgáltatás és lehetőség található a közelben, ami megkönnyíti a mindennapi életet. A csendes utcák és a barátságos szomszédság ideális környezetet biztosítanak a pihenéshez és a munkához egyaránt. A központi elhelyezkedés lehetővé teszi, hogy gyorsan elérje a város fontosabb pontjait, legyen szó üzletekről, iskolákról vagy egészségügyi intézményekről. A közlekedési lehetőségek szintén figyelemre méltóak, hiszen a város jól megközelíthető autóval, de a tömegközlekedés is könnyen elérhető, így a mindennapi ingázás is egyszerű és kényelmes. A környék biztonságos és csendes, ami hozzájárul a nyugodt életvitelhez. Ez az ingatlan nemcsak lakóhelyként, hanem befektetési lehetőségként is kiválóan megállja a helyét. Ne habozzon, keressen bizalommal kérdéseivel, és tapasztalja meg ezt a páratlan lehetőséget, amely a jövőjét szolgálhatja!
További adatok
Telekterület: 1 926 m2
Kert mérete: 1 926 m2
Erkély mérete: -
Felszereltség: -
Parkolás: -
Kilátás: -
Egyéb extrák:  
-
Hirdető adatai
Hirdető neve: Otthon Centrum
Kapcsolattartó: Radák Tibor
Hirdető telefonszáma: +36 70 716 9591
Honlap: -