Zala megye, Kálócfa
 

Ingatlan adatai
Irányár: 15 990 000 Ft
Típus: ház
Kategória: eladó
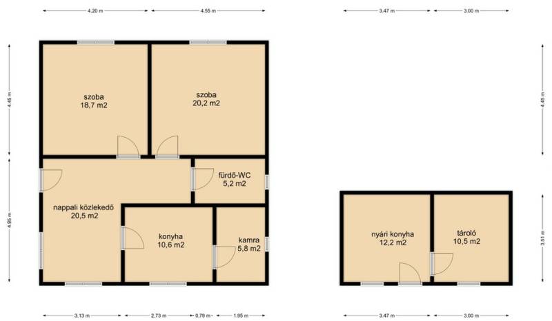
Alapterület: 80 m2
Fűtés: gáz (konvektor)
Állapota: -
Szobák száma: 3
Építés éve: 1970
Szintek száma: -
Részletes leírás
Kálócfán vált eladóvá egy 2171 m2-es sík telken elhelyezkedő 80m2-es családi ház.A ház 1970-ben épült beton alapra téglából, stukatúros födémmel.Jó szerkezeti állapotban van világos, tágas terekkel rendelkezik könnyen alakítható a mai kor követelményeinek megfelelően akár nappali+3 szobássá is.Teljes közművel rendelkezik a fűtése konvektorral és cserépkályhával is megoldott.Az udvarban lévő épület kisebb ráfordítással egy szobás lakássá alakítható.A pihenés és kikapcsolódás minden évszakban adott a Lenti Balance Resort gyógyfürdő és Szent György energiapark csak 12 km.Szlovénia 20 Ausztria 45 perc autóval.Ha szeretne többet megtudni az ingatlanról hívjon bizalommal.Irodánk teljes körű szolgáltatást nyújt kereső ügyfeleinknek.Szakszerű tanácsadással, ingyenes CSOK és hitelügyintézéssel, energetikai tanúsítvány elkészítésével és kedvező díjszabású ügyvéddel nyújtunk segítséget.
További adatok
Telekterület: 2 171 m2
Kert mérete: 2 171 m2
Erkély mérete: -
Felszereltség: -
Parkolás: -
Kilátás: -
Egyéb extrák:  
-
Hirdető adatai
Hirdető neve: Otthon Centrum
Kapcsolattartó: Sipos Rózsa
Hirdető telefonszáma: +36 70 461 9116
Honlap: -