Tolna megye, Szekszárd
 

Ingatlan adatai
Irányár: 58 000 000 Ft
Típus: ház
Kategória: eladó
Alapterület: 168 m2
Fűtés: -
Állapota: felújítást igényel
Szobák száma: 4
Építés éve: 1972
Szintek száma: -
Részletes leírás
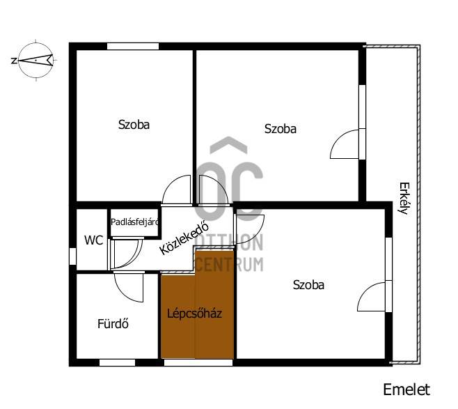
A Bottyán-hegyi területen található ház 1972-es építése óta korszerűsítésre került:- 5 cm hungarocell hőszigetelés a teljes homlokzaton- pala tető zsindelyezése- Sanier Duval kazán- LG klíma- műanyag ablakok és redőnyök, fa tokbanEzt leszámítva gyári a ház, felújítandó állapotú. 38 cm vastag téglából épültek a fő falak, 12/15 cm vastagoka válaszfalak. A tájékoztató jellegű alaprajzon jelöltek a falvastagságot és a helyiségek elrendezését. Kis átalakításokkal egy nagyon élhető, jó terekkel rendelkező háza lehet annak a családnak aki atomvillanás álló alapokkal rendelkező felújítási alapot keres. A teljes tervdokumentáció rendelkezésre áll 1970-ből, még az anyag-beszerzés könyvelése is megőrzésre került.Ha a képek és az adatok felkeltették az érdeklődésed nézzük meg a helyszínen!
További adatok
Telekterület: 624 m2
Kert mérete: 624 m2
Erkély mérete: 20 m2
Felszereltség: -
Parkolás: -
Kilátás: -
Egyéb extrák:  
-
Hirdető adatai
Hirdető neve: Otthon Centrum
Kapcsolattartó: Pintér Dániel
Hirdető telefonszáma: +36 70 461 9486
Honlap: -