Pest megye, Mogyoród
 

Ingatlan adatai
Irányár: 167 300 000 Ft
Típus: ház
Kategória: eladó
Alapterület: 129 m2
Fűtés: -
Állapota: új
Szobák száma: 5
Építés éve: 2026
Szintek száma: -
Részletes leírás
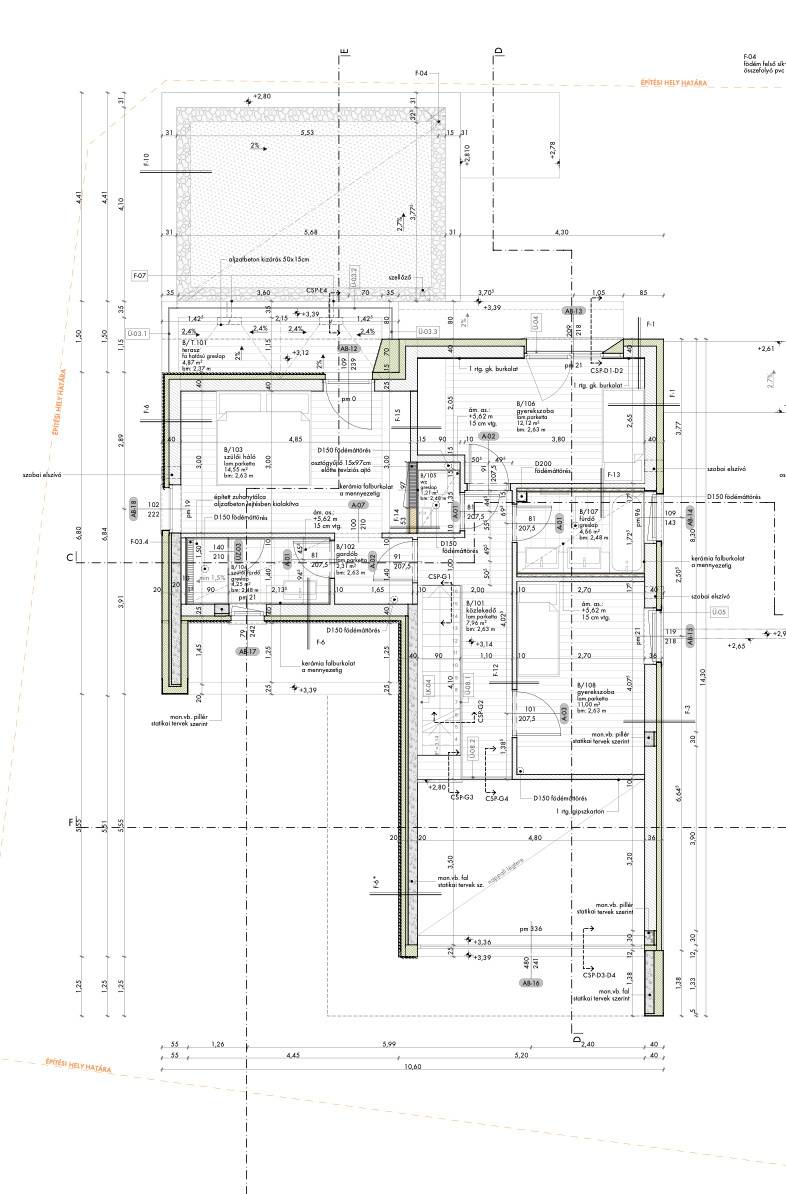
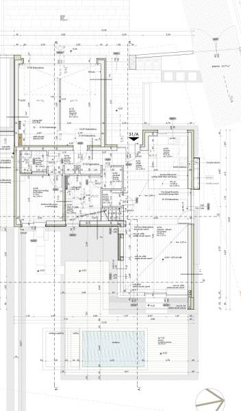
Elegáns, időtálló építészeti megoldások és nyugodt, zöld környezet várja leendő tulajdonosát ebben a prémium ikerházfélben. Az ingatlan szerkezetkész állapotban kerül értékesítésre, így a belső tereket és anyaghasználatot saját ízlésedre szabhatod – a minőségi alapok adottak.Mogyoródon rendezett, zárt lakóparkban-Dupla garázzsal-5 szobás-3 fürdőszobás-Terasz: 5,74 nm-Ház méret: 128,56 nm-Telek méret: 685,36 nmFőbb jellemzők:-Prémium alumínium nyílászárók – nagy üvegfelületek, kiváló hő- és hangszigetelés-Schlotterer motoros árnyékolók – kényelmes, modern fény- és hővédelem-Zárt villapark portaszolgálattal – rendezett környezet, ellenőrzött bejutás-Átgondolt ikerházi elrendezés – nincs egymásra néző ablak az ikerfelek között, maximális privát szféra-Földalatti esővíz-tartályok – fenntartható és költséghatékony vízhasználat a kertben-Kültéri medence – közösségi vagy saját pihenőtér (projekttől függően)-Szerkezetkész állapotból adódó szabadon alakítható belső terek és burkolatok-Mennyezeti fűtés–hűtés előkészítés – a csőhálózat már a födémbe van vezetve a huzatmentes, hatékony hőkomfortért-Elektromos hálózat előkészítve – a teljes áramcsövezés elkészült; az áram jelenleg a telken rendelkezésre áll, a házba történő bekötés még nem történt meg (az új tulajdonos ütemezése szerint megoldható)-Válaszfalak még mozgathatóak – a helyiségek elrendezése és méretezése rugalmasan, egyedi igény szerint alakíthatóVálasztható otthonok:A projektben négy különböző méretű és elrendezésű, de azonos felszereltségű ház közül választhatsz. Így minden élethelyzetre van ideális opció – a praktikusabb elrendezéstől a tágas családi megoldásig –, miközben a prémium műszaki tartalom minden házban egységes.Amiért ez jó választás:-Modern komfort és biztonság egy helyen-Időtálló anyagok, energiatudatos megoldások-Testreszabhatóság – a saját stílusodra formálhatod-Csendes, rendezett lakókörnyezet MogyoródonJöjjön el, nézze meg élőben, és válassza ki a kedvencét!Foglaljon időpontot egy személyes bejárásra, mutatjuk az alaprajzokat és megbeszéljük, hogyan valósíthatjuk meg pont olyanra, amilyennek megálmodta.Hívjon most vagy írjon üzenetet, és indulhat a saját, személyre szabott otthona története Mogyoródon!Egyedi igényekre szabott lakáshitelekkel állunk rendelkezésére.Bankfüggetlen Hitelcentrumunk az országban elérhető összes bank és hitelintézet ajánlatát versenyezteti az Ön számára díjmentesen.Munkatársaink nagy szakmai tapasztalattal, teljes körű CSOK PLUSZ és OTTHON START PROGRAM ügyintézéssel várják Önt előre egyeztetett időpontban akár a normál munkaidő után is.Projekt bemutatásaElegáns, időtálló építészeti megoldások és nyugodt, zöld környezet várja leendő tulajdonosát ebben a prémium ikerházfélben. Az ingatlan szerkezetkész állapotban kerül értékesítésre, így a belső tereket és anyaghasználatot saját ízlésedre szabhatod – a minőségi alapok adottak.Főbb jellemzők:-Prémium alumínium nyílászárók – nagy üvegfelületek, kiváló hő- és hangszigetelés-Schlotterer motoros árnyékolók – kényelmes, modern fény- és hővédelem-Zárt villapark portaszolgálattal – rendezett környezet, ellenőrzött bejutás-Átgondolt ikerházi elrendezés – nincs egymásra néző ablak az ikerfelek között, maximális privát szféra-Földalatti esővíz-tartályok – fenntartható és költséghatékony vízhasználat a kertben-Kültéri medence – közösségi vagy saját pihenőtér (projekttől függően)-Szerkezetkész állapotból adódó szabadon alakítható belső terek és burkolatok-Mennyezeti fűtés–hűtés előkészítés – a csőhálózat már a födémbe van vezetve a huzatmentes, hatékony hőkomfortért-Elektromos hálózat előkészítve – a teljes áramcsövezés elkészült; az áram jelenleg a telken rendelkezésre áll, a házba történő bekötés még nem történt meg (az új tulajdonos ütemezése szerint megoldható)-Válaszfalak még mozgathatóak – a helyiségek elrendezése és méretezése rugalmasan, egyedi igény szerint alakíthatóVálasztható otthonok:A projektben négy különböző méretű és elrendezésű, de azonos felszereltségű ház közül választhatsz. Így minden élethelyzetre van ideális opció – a praktikusabb elrendezéstől a tágas családi megoldásig –, miközben a prémium műszaki tartalom minden házban egységes.Amiért ez jó választás:-Modern komfort és biztonság egy helyen-Időtálló anyagok, energiatudatos megoldások-Testreszabhatóság – a saját stílusodra formálhatod-Csendes, rendezett lakókörnyezet MogyoródonJöjjön el, nézze meg élőben, és válassza ki a kedvencét!Foglaljon időpontot egy személyes bejárásra, mutatjuk az alaprajzokat és megbeszéljük, hogyan valósíthatjuk meg pont olyanra, amilyennek megálmodta.Hívjon most vagy írjon üzenetet, és indulhat a saját, személyre szabott otthona története Mogyoródon!Egyedi igényekre szabott lakáshitelekkel állunk rendelkezésére.Bankfüggetlen Hitelcentrumunk az országban elérhető összes bank és hitelintézet ajánlatát versenyezteti az Ön számára díjmentesen.Munkatársaink nagy szakmai tapasztalattal, teljes körű CSOK PLUSZ és OTTHON START PROGRAM ügyintézéssel várják Önt előre egyeztetett időpontban akár a normál munkaidő után is.
További adatok
Telekterület: 685 m2
Kert mérete: 685 m2
Erkély mérete: 6 m2
Felszereltség: -
Parkolás: -
Kilátás: -
Egyéb extrák:  
-
Hirdető adatai
Hirdető neve: Otthon Centrum
Kapcsolattartó: Vajk Eszter
Hirdető telefonszáma: +36 70 388 5206
Honlap: -