Zala megye, Csapi
 

Ingatlan adatai
Irányár: 23 000 000 Ft
Típus: ház
Kategória: eladó
Alapterület: 90 m2
Fűtés: egyéb
Állapota: -
Szobák száma: 3
Építés éve: 1986
Szintek száma: -
Részletes leírás
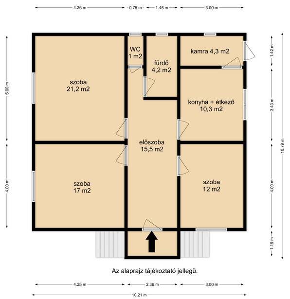
Csapiban eladó 90 m²-es családi ház nagy telekkel, garázzsal!Csapi községben, nyugodt, barátságos környezetben kínálunk megvételre egy 90 m²-es családi házat, melyhez 1928 m2-es, telek tartozik. A tágas udvar és a kert kiváló lehetőséget biztosít akár gazdálkodásra, kertészkedésre, vagy egyszerűen csak a szabadban való pihenésre.Az ingatlan belső elrendezése praktikus:- 3 külön nyíló szoba, konyha, közlekedő, fürdőszoba, WC került kialakításra.- A ház fűtése eredetileg konvektoros volt, azonban a gázóra jelenleg le van szerelve, így az új tulajdonos saját igényei szerint tervezheti újra a rendszert. Emellett hagyományos fűtési lehetőség is rendelkezésre áll, ami biztosítja a komfortot.- A ház alatt 38 m2-es garázs, tárolóhelyiség került kialakításra.- saját kút biztosítja az öntözést a nyári meleg hónapokban.- Az ingatlan szerkezete nagyon jó, beton alapra épült és a födém is beton, így akár még egy szint is építhető rá.- A ház egy tulajdonostól, tehermentesen eladó, így a birtokbaadás gördülékenyen történhet.Elhelyezkedés szempontjából Csapi kiváló választás: a közeli Zalakaros autóval rövid idő alatt elérhető, ahol gyógyfürdő, wellness és számos szabadidős lehetőség várja az ideköltözőket vagy nyaralni vágyókat. Így az ingatlan nemcsak állandó otthonnak, hanem nyaralónak is ideális.Irodánk teljes körű szolgáltatást nyújt kereső ügyfeleinek.Szakszerű tanácsadással, ingyenes CSOK és hitelügyintézéssel, energetikai tanúsítvány elkészítésével és kedvező díjszabású ügyvéddel nyújtunk segítséget!
További adatok
Telekterület: 1 928 m2
Kert mérete: 1 928 m2
Erkély mérete: -
Felszereltség: -
Parkolás: -
Kilátás: -
Egyéb extrák:  
-
Hirdető adatai
Hirdető neve: Otthon Centrum
Kapcsolattartó: Vucskó Krisztina
Hirdető telefonszáma: +36 70 716 8171
Honlap: -