Hajdú-Bihar megye, Egyek
 

Ingatlan adatai
Irányár: 19 000 000 Ft
Típus: ház
Kategória: eladó
Alapterület: 78 m2
Fűtés: egyéb
Állapota: -
Szobák száma: 2
Építés éve: 1970
Szintek száma: -
Részletes leírás
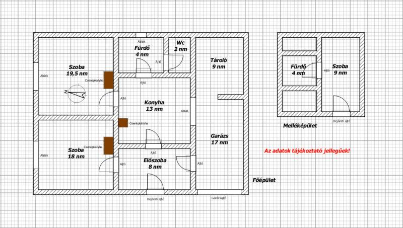
Egyeken, a Hortobágy és a Tisza-tó határán, Hajdú-Bihar megye legnyugatibb településén családi ház ELADÓ! A településen minden, ami egy család életéhez szükséges (bölcsőde, óvoda, iskola, gyógyszertár, orvosi rendelő, étterem, cukrászda, játszótér és sportpálya) megtalálható, továbbá 10 km-re fekszik a Tisza-tó \"fővárosától\", Tiszafüredtől, ahol nagyobb hipermarketek, éttermek, bankok, középiskola, stb. is rendelkezésre állnak! Egyeken elérhető a Falusi CSOK is, így a leendő tulajdonos akár ebben is gondolkodhat!A nagyközség jó környékén, csendes, mégis jó közlekedésű, aszfaltozott utcában találjuk a jó általános állapotú, dupla vályog falazatú, 78 nm-es házat 1122 nm-es telken.Belépve egy előszobában találjuk magunkat, ahonnan balra egy szoba, jobbra egy félkész garázs, szembe pedig a konyha található, ahonnan a másik szoba és a fürdőszoba nyílik. A ház mögötti melléképületben egy szoba és egy zuhanyzós, saját bojleres fürdőszoba került kialakításra, így az ingatlan akár 2 generáció együttélésére is alkalmas lehet!Főbb jellemzők: - beton alap - dupla vályog falazat - 3 működő cserépkályha - kiépített csőrendszer vegyes tüzelésű kazánhoz - víz, villany, csatorna bekötve, gáz az utcán - lakható melléképület fürdőszobávalA telken egy önállóan álló garázs, illetve állatok tenyésztésére is alkalmas ól, fedett szín is található és még a család C-vitamin szükségletét kielégítő konyhakertnek is akad kellő méretű hely!Amennyiben felkeltettem az érdeklődését, hívjon még MA és nézzük meg együtt!Teljes körű hitel ügyintézéssel és az ingatlan adásvételéhez szükséges ügyvédi háttérrel is állok a vevőjelöltek rendelkezésére.További információért és a megtekintésért kérem hívjon és hivatkozzon a H501492-es megbízási számra!
További adatok
Telekterület: 1 122 m2
Kert mérete: 1 122 m2
Erkély mérete: -
Felszereltség: -
Parkolás: -
Kilátás: -
Egyéb extrák:  
-
Hirdető adatai
Hirdető neve: Otthon Centrum
Kapcsolattartó: Varga József István
Hirdető telefonszáma: +36 70 716 9406
Honlap: -