Zala megye, Nagykanizsa
 

Ingatlan adatai
Irányár: 36 000 000 Ft
Típus: ház
Kategória: eladó
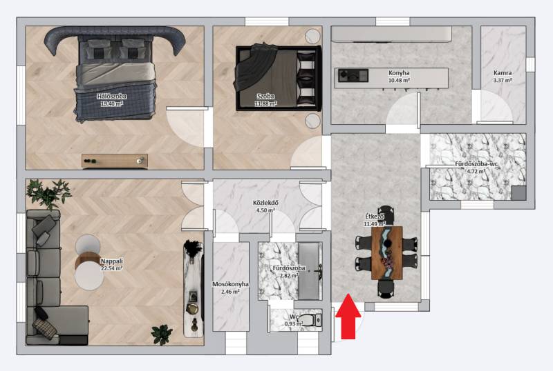
Alapterület: 95 m2
Fűtés: gáz (konvektor)
Állapota: -
Szobák száma: 3
Építés éve: 1940
Szintek száma: -
Részletes leírás
Megvételre kínálom ezt a 3 szobás, 2 fürdőszobával rendelkező, jó elosztású családi házat a Nagykanizsai katonaréten!KÖRNYÉK ÉS KÖZLEKEDÉS:- Csendes, nyugodt környezet.- Buszmegálló 7 perc sétára.- Barátságos szomszédok.- Közel a belváros.- Közkedvelt kertvárosias környék.A HÁZRÓL:- A 320 m2 területen elhelyezkedő ingatlan, nettó 94,5 m2.- Felújítandó állapotú.- 3 szobás, 2 fürdőszobával rendelkező.- 1940-es években épült.- Falazata tégla.- Az ingatlan egy része alatt pince található.- Teteje cseréppel fedett.- Nyílászárói fa nyílászárók.- Belmagasság 320 cm.- Fűtése gáz konvektorokkal megoldott.- Tájolása dél-keletiUDVAR:- Az 320 m2-es terület, sík.- Körbekerített.- Hátsó részén megtalálható 1 melléképület.Irodánk teljes körű, ingyenes szolgáltatást nyújt kereső ügyfeleinknek.Szakszerű tanácsadással, ingyenes hitel és CSOK ügyintézéssel, energetikai tanúsítvány elkészítésével és kedvező díjszabású ügyvéddel nyújtunk segítséget!További információkkal, és a megtekintéssel kapcsolatban várom HÍVÁSÁT a hét minden napján!
További adatok
Telekterület: 320 m2
Kert mérete: 320 m2
Erkély mérete: -
Felszereltség: -
Parkolás: -
Kilátás: -
Egyéb extrák:  
-
Hirdető adatai
Hirdető neve: Otthon Centrum
Kapcsolattartó: Latin Richárd
Hirdető telefonszáma: +36 70 412 3621
Honlap: -