Pest megye, Vácrátót
 

Ingatlan adatai
Irányár: 129 900 000 Ft
Típus: ház
Kategória: eladó
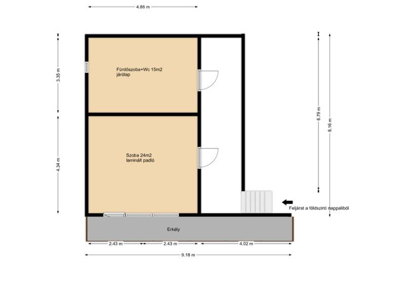
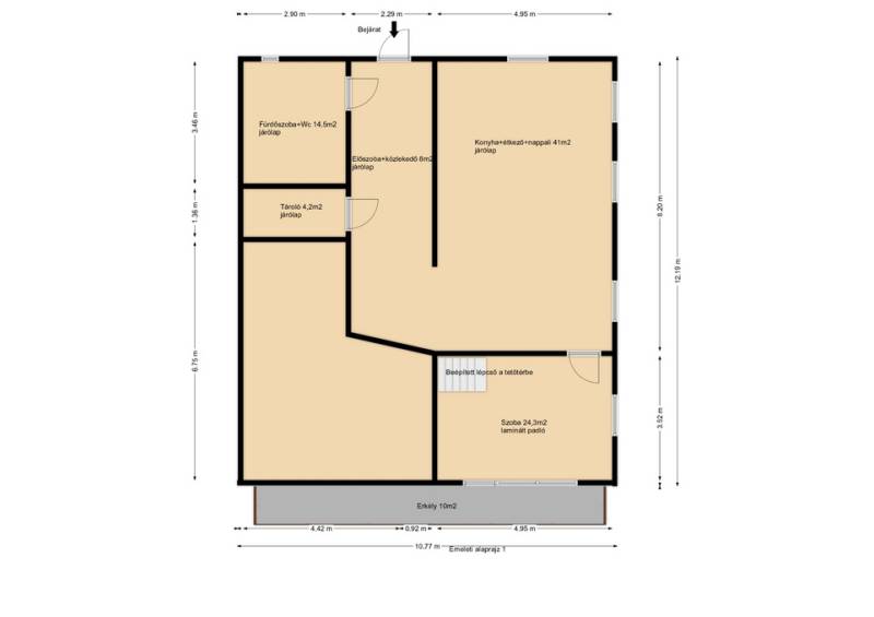
Alapterület: 321 m2
Fűtés: gáz (cirko)
Állapota: -
Szobák száma: 10
Építés éve: 1985
Szintek száma: -
Részletes leírás
Vácrátót, Pest megyében a Veresegyházi-medencében fekszik. Keleten a Gödöllői-dombság, délen a fóti Somlyó-hegy, északon a Cserhát peremén húzódó Kígyós-dombsor, végül nyugat felől a gödi lapály határolja.Ebben a fantasztikus környezetben kínálom eladásra ezt a kétgenerációs ingatlant.Az ingatlant a tulajdonosok 1985-ben kezdték építeni, végleges formáját pedig 1990-ben érte el (a család növekedésével növekedett az ingatlan is).A folyamatosan karbantartott ingatlan nyolc szobából és négy fürdőszobából áll. Garázs egy autó számára és két nyitott beálló, ami fedetté tehető.1438 m2-es kertjében minden megtalálható.2025-ben 20cm-es szigetelést kapott a ház és a fűtésredszer is korszerűsítve lett, új kondenzációs cirkót kapott.Fűtéséhez a gáz mellett, vegyestüzelésű kazán és inverteres is rendelkezésre áll.Jelenleg a ház 2-szintje van készen,(földszint és az 1.emelet.) a 2. emelet szerkezetkész állapotban van.Tető szigetelés, válaszfalak (gipszkarton), ajtók, ablakok, fürdőszobai vízliállások , villanyvezetékelés, beton aljzat.Itt található 5 szoba és a fürdő wc-vel.Közvetlen Volánbusz járattal Vác 20-25 perc alatt elérhető, de a kettes számú főút is csak 5 perc autóútra található melyen Budapest is csak 20 perc.Az ingatlant hatalmas terek jellemzik a felső szint teljesen különálló (külső lépcsőn megközelíthető), de igény szerint akár belülről is össze nyitható. A város folyamatosan fejlődik és szépül megtalálható itt óvoda, iskola, bringa park, Botanikus kert, Sportcsarnok.Köszönöm, hogy megtekintette hirdetésem!Várom megtisztelő hívását a hét bármely napján!#családiház#vácrátót#kétgenerációs#nagykert#
További adatok
Telekterület: 1 438 m2
Kert mérete: 1 438 m2
Erkély mérete: -
Felszereltség: -
Parkolás: -
Kilátás: -
Egyéb extrák:  
-
Hirdető adatai
Hirdető neve: Otthon Centrum
Kapcsolattartó: Horváth Zoltán
Hirdető telefonszáma: +36 70 412 3201
Honlap: -