Pest megye, Mogyoród
 

Ingatlan adatai
Irányár: 169 000 000 Ft
Típus: ház
Kategória: eladó
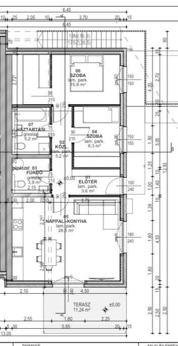
Alapterület: 122 m2
Fűtés: -
Állapota: új
Szobák száma: 6
Építés éve: 2025
Szintek száma: -
Részletes leírás
Mogyoród kertvárosi csendes részén eladó egy új építésű ikerház egyik fele. Tökéletes választás lehet nagy családosok számára!Ez a modern otthon 122 nm-es lakótérrel, egy 11,24 nm-es terasszal, egy 16,4 nm-es garázzsal egy fedett autóbeállóval és egy 400 nm-es kerttel biztosítja a hétköznapok kényelmét.Elrendezését tekintve jól átgondolt/praktikus,így akár két generáció számára is biztosítja a kényelmes,nyugodt élet lehetőségét.Padlófűtés és korszerű hőszivattyús berendezés gondoskodik az otthon melegéről. A H tarifás megoldásnak köszönhetően költséghatékony a leghidegebb téli időszakokban is! A ház minőségi alapanyagokból épül és modern műszaki tartalommal tervezett. A belső kialakítás illetve a burkolatok még saját ízlésre formálhatók.Lokáció szempontjából tökéletes az elhelyezkedése, hiszen a Gödöllő-i hév megállója (Szentjakab) csupán pár perc séta, míg autóval az M3 autópályáról szintén könnyen és gyorsan megközelíthető,de mégis a természet közelsége pihentető/nyugtató hatást gyakorol az itt lakókra! Átadás várható időpontja 2026 decembere.Egyedi igényekre szabott lakáshitelekkel állunk rendelkezésére. Bankfüggetlen hitelcentrumunk az országban elérhető összes bank és hitelintézet ajánlatát versenyezteti az Ön számára díjmentesen. Munkatársaink nagy szakmai tapasztalattal várják Önt az előre egyeztetett időpontban.Bővebb információért és a megtekintéssel kapcsolatban hívjon bizalommal!
További adatok
Telekterület: 400 m2
Kert mérete: 400 m2
Erkély mérete: 11 m2
Felszereltség: -
Parkolás: -
Kilátás: -
Egyéb extrák:  
-
Hirdető adatai
Hirdető neve: Otthon Centrum
Kapcsolattartó: Nyilas Szabina
Hirdető telefonszáma: +36 70 469 3821
Honlap: -