Hajdú-Bihar megye, Debrecen
 

Ingatlan adatai
Irányár: 119 900 000 Ft
Típus: ház
Kategória: eladó
Alapterület: 123 m2
Fűtés: gáz (cirko)
Állapota: új
Szobák száma: 4
Építés éve: 2026
Szintek száma: -
Részletes leírás
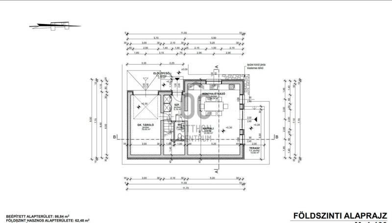
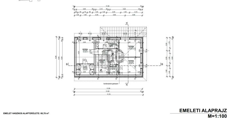
Ez az ingatlan a C 2 - es lakás, 123,26 m2 a hasznos alapterülete, földszint + emelet kialakítású + terasz + garázs .Fszt : konyha - étkező - nappali, wc , lépcső emeletre + garázs helyiségekből áll.Emelet : 3 szoba , az egyikhez gardrob szoba is tartozik, fürdő, háztartási helyiségekből állProjekt bemutatásaDebrecen csendes lakóövezeti részén, földszint + emelt kialakítású ikerházi lakások eladóak.Földszint helyiségei : konyha - étkező - nappali, + terasz + garázsEmelet helyiségei : 3 szoba, fürdő, háztartási helyiség + az egyik szobához gardrob szoba.Az ingatlanok korszerű műszaki megoldásokkal, időtálló technológiával épülnek.Főbb műszaki jellemzők : Porotherm NF 30 - as tégla falazat + 15 cm homlokzati szigetelés, 3 rtg hő és hangszigetelt nyílászárók, monolit vb födém, tetőszerkezet cserépfedéssel, IMMERGAS 24 Kw - os kondenzációs kazán biztosítja a fűtést, és a melegvizet, a fűtés : padlófűtés hőleadóval megoldott, szekcionált garázsajtó 2 db távirányítóval, stb...A korszerű gépészet, modern elektromos hálózat és az igényes belső műszaki tartalom hozzájárulnak az élhető, modern lakás megvalósításához.Várható átadás : 2026 nyara ha felkeltettem az érdeklődését, kérem hívjon bizalommal !
További adatok
Telekterület: 120 m2
Kert mérete: 120 m2
Erkély mérete: 14 m2
Felszereltség: -
Parkolás: -
Kilátás: -
Egyéb extrák:  
-
Hirdető adatai
Hirdető neve: Otthon Centrum
Kapcsolattartó: Tóth Ferenc
Hirdető telefonszáma: +36 70 716 9076
Honlap: -