Hajdú-Bihar megye, Debrecen
 

Ingatlan adatai
Irányár: 64 900 000 Ft
Típus: ház
Kategória: eladó
Alapterület: 90 m2
Fűtés: egyéb
Állapota: felújítást igényel
Szobák száma: 4
Építés éve: 1993
Szintek száma: -
Részletes leírás
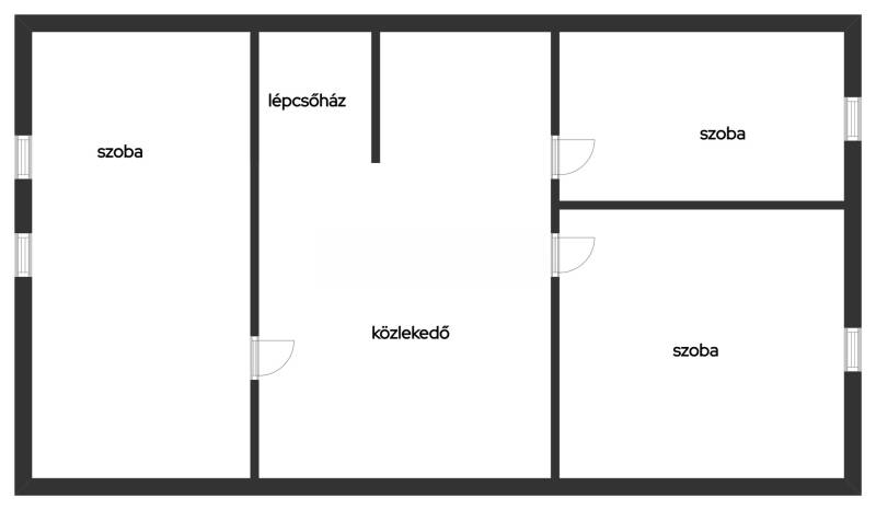
Debrecen csendes, de mégis dinamikus városrészében, Alsó-Józsán kínálunk eladásra egy 80 nm-es, felújítandó házat, amely bővítési lehetőségeket is rejt magában.A ház beton alapra épült,falazata tégla.A földszinten egy előszoba, nappali,étkezö,konyha ,fürdőszoba,WC ,kamra,kazánház található!Az emeleten 3 szoba és egy közledő található!A 995 nm-es telek lehetőséget ad arra, hogy saját kertjét alakíthassa ki. A vegyes fűtés (cirkó) lehetőséget ad arra, hogy a téli hónapokban is komfortosan érezze magát. A ház modernezációra vár! Az ingatlan elhelyezkedése kiváló, hiszen csendes környékén a nyugalom és a biztonság garantált. A közlekedési lehetőségek is kedvezőek: a város tömegközlekedési eszközei könnyen elérhetők, így a munkahelyek és az iskolák gyorsan megközelíthetők. Az autós közlekedés is egyszerű, hiszen a környék jól megközelíthető, és a város többi része is könnyen elérhető. A környék nemcsak a csendes és biztonságos életvitel miatt vonzó, hanem számos szolgáltatás is elérhető a közelben. Bolt, iskola, óvoda és orvosi rendelő is megtalálható, így minden szükséges szolgáltatás kényelmes közelségben van. Ez a ház nemcsak egy ingatlan, hanem egy lehetőség arra, hogy álmait valóra váltsa.További kérdéssel,megtekintéssel kapcsolatban várjuk hívását a hét minden napján.Irodánk teljeskörű ügyintézéssel,díjtalan és bankfüggetlen hitelszakértővel,kiváló ügyvédi háttérrel várja ügyfelei jelentkezését.
További adatok
Telekterület: 995 m2
Kert mérete: 995 m2
Erkély mérete: 4 m2
Felszereltség: -
Parkolás: -
Kilátás: -
Egyéb extrák:  
-
Hirdető adatai
Hirdető neve: Otthon Centrum
Kapcsolattartó: Füzesiné Nagy Tünde
Hirdető telefonszáma: +36 70 388 5731
Honlap: -