Budapest, XXIII.kerület
 

Ingatlan adatai
Irányár: 129 900 000 Ft
Típus: ház
Kategória: eladó
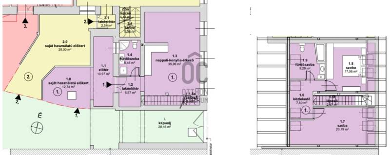
Alapterület: 117 m2
Fűtés: gáz (cirko)
Állapota: -
Szobák száma: 3
Építés éve: 1960
Szintek száma: -
Részletes leírás
Fedezze fel álmai otthonát Budapest 23. kerületében, Soroksáron, ahol a modern életstílus és a természet közelsége találkozik! Ez a kiváló állapotban lévő, frissen felújított, 4 lakásos ház egyik gyönyörű lakása ideális választás fiatal felnőttek, illetve családok számára, akik egy exkluzív, mégis megfizethető otthont keresnek. Egyedi igényekre szabott lakáshitelekkel állunk rendelkezésére.Bankfüggetlen Hitelcentrumunk az országban elérhető összes bank és hitelintézet ajánlatát versenyezteti az Ön számára díjmentesen.Munkatársaink nagy szakmai tapasztalattal, teljes körű CSOK PLUSZ és OTTHON START PROGRAM ügyintézéssel várják Önt előre egyeztetett időpontban akár a normál munkaidő után is.Az ingatlan alapterülete 117 nm, amely három tágas szobát és két fürdőszobát foglal magában, így bőven elegendő helyet biztosít a kényelmes életvitelhez. A házhoz tartozik egy 10 nm-es terasz, ahol élvezheti a reggeli kávéját vagy a nyári estéket, miközben a rendezett kert szépségét csodálja. Az ingatlan prémium kivitelezéssel készült, minden részletre figyelmet fordítva, beleértve az összes helységben klíma előkészítést, 3 rétegű zajszűrős ablakokat, integrált szúnyoghálókat és a motoros alumínium redőnyöket, amelyek nemcsak a kényelmet, hanem a biztonságot is garantálják. Extra a fürdőszobában az integrált szagelszívós wc, és a luxus kategóriájú burkolatok. A földszinten padlófűtéssel, az emeleten radiátorokkal megoldott a kondenzációs kazánnal működő fűtés. A lakás a hőszigetelő ablakok mellett 15 centis hőszigetelő rendszerrel ellátott, így kedvező rezsire számíthat az új tulajdonos. A kertkapcsolatos lakás lehetőséget nyújt arra, hogy a szabadban is eltölthessen időt, miközben az automata öntözőrendszer gondoskodik a növények ápolásáról. A ház földszinti része akadálymentesített, így mindenki számára könnyen megközelíthető. A kertben a közös használatú terek mellett helyet kapott egy kis előkert, mely lekeríthető, és minden lakáshoz tartozik egy garázs, és egy autóbeálló. A teljesen intim közös belső udvarba távirányítós kapun jutunk be. A környék ellátottsága kiváló, hiszen a közeli boltok, éttermek és szolgáltatások mindössze pár perc sétára találhatók. A központi elhelyezkedésnek köszönhetően a közlekedés is kitűnő, hiszen a helyi buszjáratok és hévmegálló is 2 perces sétatávolságon belül található, így a város többi része gyorsan és kényelmesen megközelíthető. Soroksár legbiztonságosabb környéke ideális választás családok és fiatalok számára egyaránt, akik szeretnék élvezni a városi élet előnyeit, miközben a természet közelsége is biztosított. Ez a tehermentes ingatlan remek lehetőséget kínál mindazok számára, akik saját otthonra vágynak vagy befektetési céllal keresnek ingatlant. Ne habozzon, hiszen az ilyen lehetőségek gyorsan elkelnek! Amennyiben további kérdései lennének, vagy szeretné megtekinteni az ingatlant, bizalommal fordulhat hozzám. A teljeskörű felújítás a napokban elkészül, az ingatlan 1 hónapon belül költözhető. A konyhabútort a vevő a saját ízlése szerint választhatja, mert azt nem tartalmazza az ingatlan. Rugalmasan mutatom, szinte bármikor!
További adatok
Telekterület: 694 m2
Kert mérete: 694 m2
Erkély mérete: 10 m2
Felszereltség: -
Parkolás: -
Kilátás: -
Egyéb extrák:  
-
Hirdető adatai
Hirdető neve: Otthon Centrum
Kapcsolattartó: Kornhoffer Csilla
Hirdető telefonszáma: +36 70 412 3736
Honlap: -