Bács-Kiskun megye, Fülöpszállás
 

Ingatlan adatai
Irányár: 19 800 000 Ft
Típus: ház
Kategória: eladó
Alapterület: 162 m2
Fűtés: gáz (cirko)
Állapota: felújítást igényel
Szobák száma: 2
Építés éve: -
Szintek száma: -
Részletes leírás
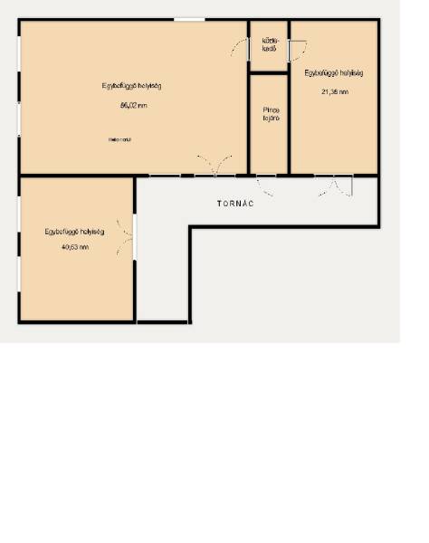
Bács-Kiskun Vármegyében Fülöpszállás település központjában eladóvá vált egy az 1900-as évek elején épült nagypolgári tégla építésű családi ház.A ház egy 1704 nm-es telken helyezkedik el, jelenleg 3 nagy térre tagolt, nettó 126 nm-es lakóterű, közfalak nélküli. A telken továbbá egy nettó 36 nm-es melléképület, mely akárkétgenerációs lakhatást is biztosít. Az épület alatt egy 25 nm-es jó állapotú pince, mely több hasznosításnak is megfelel.A ház fő jellemzői:- 1704 nm terület- Főépület nettó 126 nm, melléképület nettó 36 nm.- Teljesen új villany vezeték az egész ingatlanban- 7 körös padlófűtés becsövezve- kerámia lapokkal burkolt a főépület- vízkiállások, lefolyóval előkészítve- 30 nm fedett tornác- sarki telken elhelyezkedő ingatlan- új tetőszerkezet, és fedés- belmagassága 3,7 méter- bejárat két utcáról lehetségesAz ingatlan lakhatásra és vállalkozási célra egyaránt remek lehetőségeket rejt magában. Belső kialakítása saját igény szerint. Homlokzata felújítást igényel, nem áll védettség alatt.Megtekintésért, további részletekért, információkért keressen bizalommal!Bács-Kiskun, nagypolgári, családi ház, vállalkozási célra, Fülöpszállás
További adatok
Telekterület: 1 704 m2
Kert mérete: 1 704 m2
Erkély mérete: 25 m2
Felszereltség: -
Parkolás: -
Kilátás: -
Egyéb extrák:  
-
Hirdető adatai
Hirdető neve: Otthon Centrum
Kapcsolattartó: Boros Julianna
Hirdető telefonszáma: +36 70 388 5866
Honlap: -