Budapest, XI.kerület
 

Ingatlan adatai
Irányár: 271 900 000 Ft
Típus: ház
Kategória: eladó
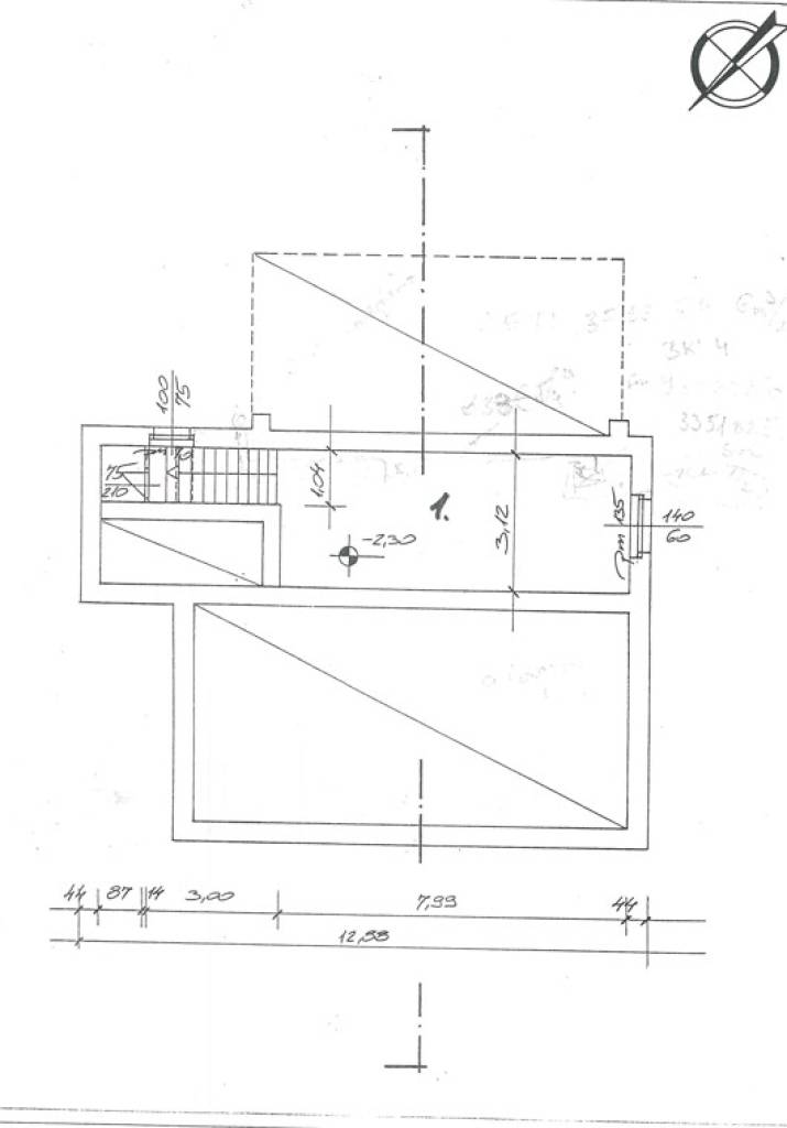
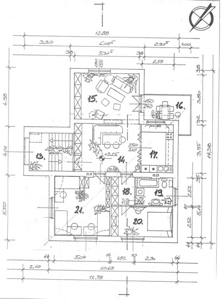
Alapterület: 272 m2
Fűtés: gáz (cirko)
Állapota: -
Szobák száma: 7+1
Építés éve: 1971
Szintek száma: -
Részletes leírás
Eladó egy jó állapotú családi ház a festői Budapest hegyvidéki részén, a Törökbálinti úton. A 272 négyzetméteres ingatlanban 7+1 szoba található, így bőven van hely nagyobb családoknak vagy akár otthoni munkavégzésre is. A ház gáz cirkó fűtéssel rendelkezik, ami gazdaságos és kényelmes megoldást nyújt a fűtési szezonban. A kertre néző kilátás minden évszakban garantálja a nyugodt és kellemes környezetet. Az ingatlanhoz tartozik egy 10 négyzetméteres erkély és egy 35 négyzetméteres terasz is, tökéletes helyszín családi és baráti összejövetelekhez.Amennyiben vállalkozása van, gondolkodik annak indításáról, itt a remek alkalom. Az ingatlan fekvése, elhelyezkedése miatt kiváló helyszín lehet a működéshez. Ne hagyja ki ezt a különleges lehetőséget, fedezze fel ezt a csodálatos családi házat Budapest egyik legszebb részén!AMENNYIBEN NEM RENDELKEZIK A TELJES VÉTELÁRRAL, segítünk Önnek megtalálni a legjobb megoldást! BANKFÜGGETLEN hitelcentrumunk minden elérhető bank és hitelintézet ajánlatát versenyezteti az Ön kedvéért, ráadásul díjmentesen. Önnek nincs más dolga, mint elbeszélgetni munkatársunkkal, aki a hallott információk alapján versenyre hívja a bankokat, hogy Ön hosszú távon is a legjobb konstrukciót kaphassa. A legjobb ajánlatokból végül Ön választhatja ki a nyertest. Munkatársaink sokéves szakmai tapasztalattal várják Önt, előre egyeztetve akár a normál munkaidő után is.További információkért állok rendelkezéséreZZs.
További adatok
Telekterület: 1 000 m2
Kert mérete: 1 000 m2
Erkély mérete: 45 m2
Felszereltség: -
Parkolás: -
Kilátás: kertre néző
Egyéb extrák:  
-
Hirdető adatai
Hirdető neve: GDN Ingatlanhálózat
Kapcsolattartó: Zámbó Zsolt
Hirdető telefonszáma: +36-30-786-0885
Honlap: -