Komárom-Esztergom megye, Kisigmánd
 

Ingatlan adatai
Irányár: 53 900 000 Ft
Típus: ház
Kategória: eladó
Alapterület: 152 m2
Fűtés: gáz (cirko)
Állapota: -
Szobák száma: 5
Építés éve: 1960
Szintek száma: -
Részletes leírás
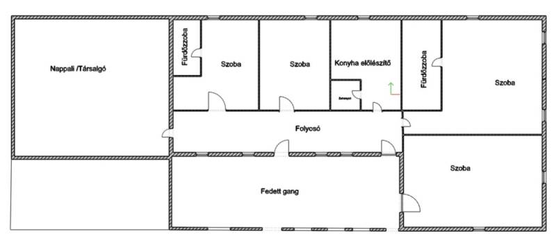
Kitűnő elhelyezkedés, számtalan lehetőség!Eladásra kínálunk egy közepes állapotú családi házat Kisigmánd központi részén. Az ingatlan 152 négyzetméter alapterületű, öt szobával rendelkezik,3 fürdőszobával, külön mellékhelyiséggel, konyhával, hatalmas terekkel. Ideális választás nagyobb családok számára, befektetésnek, munkásszállónak, vadászháznak,kultúrális programok helyszínének.A házat gáz cirkó fűtési rendszer biztosítja kellemes meleggel a hideg hónapokban. A 673 négyzetméteres kert kiváló lehetőséget nyújt kikapcsolódásra és kerti összejövetelek szervezésére. Az ingatlanhoz vásárolható további 3500 m2 telek, amely külön helyrajzi számon szerepel. A házhoz tartozik egy 20 négyzetméteres terasz is, amely tökéletes helyszín a reggeli kávézásokhoz vagy esti pihenésekhez. Az M1-es autópályától mindössze pár percnyi távolságra, Komáromot és Székesfehérvárt összekötő út mellett található ez a település.Az ELADÓ KISIGMÁNDI CSALÁDI HÁZ főbb jellemzői:- 1960-as építés- vegyes falazat (tégla, kő, vályog)- tető: cserép- nyílászárók: fa- aljzatburkolat: hajópadló, járólap, padlószőnyeg- fűtés: cirkó gáz (Vaillant)- összközműves- D-K-i fekvésűBelső elrendezése jelen kialakításában: három külön bejárattal rendelkező \"lakrész\" került kialakításra, melyek külső gang részről közelíthetőek meg.Tágas méretű szoba a hozzá kapcsolódó fürdőszobával.Közlekedőn keresztül megközelíthető: konyha-előkészítő, két kényelmes méretű szoba, fürdőszoba.Vendéglátó tér (fogadó, társalgó) melyhez két mellékhelyiség kapcsolódik.A külső közlekedő részből közelíthető meg a régmúltat idéző borospince, mely nemcsak családi-baráti összejövetelek helyszínéül szolgálhat, hanem a gazdálkodásból származó termény megfelelő tárolására is alkalmas. Ha vállkaozásban gondolkodik, táboroztatás, szálláshely,étterem, állattartás, gazdálkodás mind müködőképes lehetőség a területen. Ha felkeltette érdeklődését hívjon időpont miatt, hétvégén is.
További adatok
Telekterület: 673 m2
Kert mérete: 673 m2
Erkély mérete: 20 m2
Felszereltség: -
Parkolás: -
Kilátás: utcai
Egyéb extrák:  
-
Hirdető adatai
Hirdető neve: GDN Ingatlanhálózat
Kapcsolattartó: Huszár Éva
Hirdető telefonszáma: +36-30-293-6514
Honlap: -