Tolna megye, Decs
 

Ingatlan adatai
Irányár: 22 900 000 Ft
Típus: ház
Kategória: eladó
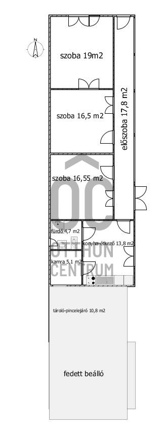
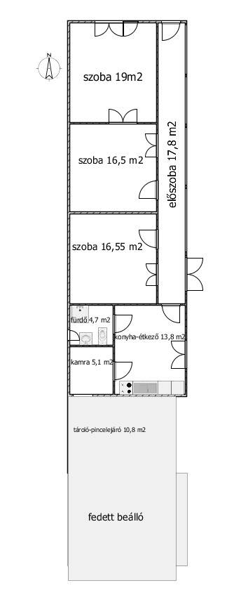
Alapterület: 94 m2
Fűtés: gáz (konvektor)
Állapota: -
Szobák száma: 3
Építés éve: 1960
Szintek száma: -
Részletes leírás
A Tolna vármegye szívében, Decs városában található, Rákóczi utcai ingatlanunk tökéletes választás lehet Önnek, ha a csendes, mégis jól megközelíthető környezetet keresi. Az ingatlan használt, de korához képest jó állapotának köszönhetően rengeteg lehetőséget rejt magában. A ház alapterülete 94 négyzetméter, amely három tágas szobát foglal magában, így ideális családok számára is. A fürdőszoba egybenyitott, zuhanyzós, ami kényelmes használatot biztosít.A telek mérete 701 négyzetméter, így bőven van hely a kertészkedésre vagy akár egy kis pihenőhely kialakítására is. Az ingatlan fűtése gázkonvektorral történik, ami gazdaságos fűtési megoldást nyújt a hideg hónapokban. A tágas szobák és a világos terek barátságossá teszik a házat.A konyha nagyobb családok számára is megfelelő méretű. A tető cseréppel fedett. A ház mögötti tárolóból jó állapotú és méretű pince nyílik. A fedett autóbeálló igazán tágas. Az ólak is megvannak, ha valaki állatokat tartana. Az ingatlan Falusi CSOK kompatibilis, így ideális választás lehet fiatal családok számára, akik szeretnék kihasználni a támogatási lehetőségeket. Decs városa nemcsak a természet közelségét kínálja, hanem a környék ellátottsága is kiváló. A közeli boltok, iskolák és egészségügyi intézmények mind könnyen elérhetők, így a mindennapi élet kényelmesen zajlik. A közlekedési lehetőségek is kedvezőek, hiszen a település jól kapcsolódik a környező városokhoz, autóval és tömegközlekedéssel egyaránt. A csendes utcák és a barátságos szomszédság garantálja a nyugodt életvitel lehetőségét. Ha Ön olyan ingatlant keres, amely nemcsak otthont, hanem értéknövelő befektetést is jelent, akkor ez a ház remek választás lehet. Bízzon meg bennünket, és ne habozzon kérdésekkel keresni, hiszen célunk, hogy a legjobb döntést hozhassa meg az ingatlanvásárlás során. Az ingatlanpiac folyamatosan változik, és mi itt vagyunk, hogy Önnek segítsünk a legjobb lehetőségek megtalálásában.Időpontért keressen bátran!Kedves Ügyfelünk, az ingatlanról videót is készítettünk. Ha ezt a hirdetést az Otthon Centrum weboldalán nézi, akkor a videóra a képek után tud kattintani. Ha egy másik weboldalon találta ezt a hirdetést, kérem nyissa meg az Otthon Centrum weboldalát, kattintson a „Regisztrációs szám keresése” menüpontra, és írja be ezt a regisztrációs számot a keresőbe: H507998 Itt meg tudja tekinteni az ingatlanról készült videót. Vagy írjon nekem, és szívesen elküldöm a videót.Ha a vásárláshoz hitelre van szüksége, kollégánk ingyenes, bankfüggetlen pénzügyi szolgáltatással áll rendelkezésre!családi ház vegyes jó állapot 3 szoba nagy kert gázfűtés OC H507998
További adatok
Telekterület: 701 m2
Kert mérete: 701 m2
Erkély mérete: -
Felszereltség: -
Parkolás: -
Kilátás: -
Egyéb extrák:  
-
Hirdető adatai
Hirdető neve: Otthon Centrum
Kapcsolattartó: Dániel Lilla Anna
Hirdető telefonszáma: +36 70 388 6296
Honlap: -