Tolna megye, Szekszárd
 

Ingatlan adatai
Irányár: 59 500 000 Ft
Típus: ház
Kategória: eladó
Alapterület: 96 m2
Fűtés: elektromos
Állapota: felújítást igényel
Szobák száma: 6
Építés éve: 1978
Szintek száma: -
Részletes leírás
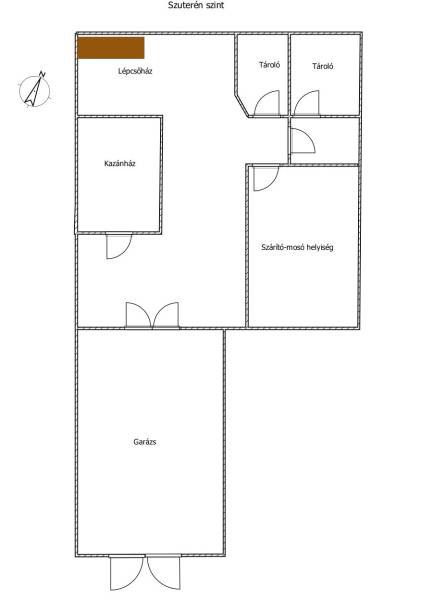
Eladásra kínálok egy igazán különleges, többgenerációssá alakítható sorházi lakást Szekszárd egy nyugodt, forgalomtól védett utcájában.A tégla falazatú, háromszintes + galériás + beépített tetőteres ingatlan olyan térkapacitással rendelkezik, amely ritkaság a környéken — itt tényleg minden ötletnek jut hely!Helyiségek és kialakításAlagsor:- Garázs- Háztartási helyiségek- Több tároló – műhelynek, hobbiszobának, sportszer-tárolónak ideálisFöldszint:- Tágas nappali- Étkező- Konyha- Egy szoba, ami kiváló dolgozónak vagy vendégszobának- Fürdőszoba- Külön WC- Közlekedők, jól szervezett térkapcsolatokkalEmelet:- Négy szoba- Külön fürdőszoba- Gardróbhelyiség- Az egyik szoba saját, nagy méretű galériával – gyerekbirodalomnak, dolgozónak, vendégrésznek tökéletesTetőtér:Beépítve - várja új tulajdonosa elképzeléseit(ideális lehet: gamer szoba, otthoni iroda, edzőterem, moziszoba vagy akár egy teljesen külön lakrész kialakítására)Műszaki tartalom: - A külső vakolat hőszigetelt- A fedés síkpala + bitumenes zsindely- Jelenleg infra fűtés gondoskodik a melegről, de az egész házban kiépített padlófűtés várja újraélesztését,- Elektromos kazán- A melegvízet egy 1 éves, 200 literes villanybojler biztosíja- Éjszakai áram- Ipari áram- Új, feltöltős villanyóra- Gáz a telken belül- 5 éve belső és külső festés történt, csatorna javítás, valamint a hátsó terasz fedése is megtörtént- A ház állapota felújítandó, de masszív alapokkal és kiváló adottságokkal rendelkezikMiért különleges ez a ház?Ez az ingatlan nem egyszerűen egy „tágas ház”.Ez egy variálható, átalakítható, multifunkciós tér, amihez ma már ritkán jut hozzá az ember.Kinek ideális választás?- Nagycsaládosoknak, akiknek fontos, hogy minden gyermeknek saját szobája legyen- Kétgenerációs együttéléshez - Vállalkozóknak, akiknek kell egy külön iroda, műhely, stúdió vagy szalon- Airbnb / bérbeadásban gondolkodóknak – kis ráfordítással több, külön bejáratú apartman is kialakítható- Otthonról dolgozóknak, akiknek szükségük van csendre, térre, kreatív munkaszobára- Befektetőknek, akik értékelik a nagy lakóterek ritkaságát és sokoldalúságátEz a ház olyan, mint egy üres vászon: az alapok készen állnak, a lehetőségek határtalanok.A tágas terek, a sokszintű kialakítás és a variálhatóság miatt kevés ilyen ingatlan található Szekszárdon — aki ilyet keres, ritkán kap második esélyt.Ha szeretné megismerni a helyszínen is ezt a sokoldalú, óriási potenciállal rendelkező otthont, hívjon bizalommal! Megmutatom, hová képzelheti el a jövőjét.
További adatok
Telekterület: 250 m2
Kert mérete: 250 m2
Erkély mérete: 19 m2
Felszereltség: -
Parkolás: -
Kilátás: -
Egyéb extrák:  
-
Hirdető adatai
Hirdető neve: Otthon Centrum
Kapcsolattartó: Máté Dóra
Hirdető telefonszáma: +36 70 469 3581
Honlap: -