Baranya megye, Olasz
 

Ingatlan adatai
Irányár: 129 000 000 Ft
Típus: ház
Kategória: eladó
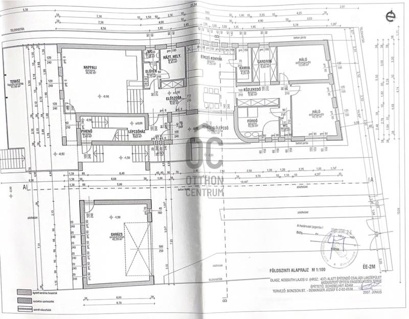
Alapterület: 236 m2
Fűtés: gáz (cirko)
Állapota: -
Szobák száma: 4
Építés éve: 2007
Szintek száma: -
Részletes leírás
Eladó csendes, madárcsicsergős környezetben egy kivételes lehetőségeket rejtő családi ház Olaszon, mindössze 20 km-re Pécstől, Mohács irányába!A tágas, 2400 m²-es telken elhelyezkedő ingatlan két szintes, így ideális nagycsaládosoknak, többgenerációs együttéléshez vagy akár vállalkozási célokra is.A ház jelenlegi kialakítása:8 szoba, amely további 3 helyiséggel könnyedén bővíthető4 fürdőszoba3 állásos garázs, illetve több autó számára kialakított kültéri beállókNyugati és déli tájolás, amely egész napos természetes fényt biztosítTágas, napfényes teraszok a kényelmes kikapcsolódásértAz ingatlan 73%-os készültségi szinten áll, így ideális lehet azok számára, akik saját ízlésükre formálnák a belső tereket és a befejezés minden részletét.Fejezze be ezt a csodás házat a saját elképzelései szerint, és élvezze a természetközeli, nyugodt környezet varázsát minden egyes nap!Vállalkozásra, fizetővendéglátásra vagy akár panzió kialakítására is kiválóan alkalmas.A M6-os autópálya közelségének köszönhetően a közlekedés gyors és kényelmes.Teljes műszaki dokumentáció rendelkezésre áll, további információért keressen bizalommal.Ne hagyja ki ezt az egyedülálló lehetőséget, várom hívását!
További adatok
Telekterület: 2 239 m2
Kert mérete: 2 239 m2
Erkély mérete: -
Felszereltség: -
Parkolás: -
Kilátás: -
Egyéb extrák:  
-
Hirdető adatai
Hirdető neve: Otthon Centrum
Kapcsolattartó: Novák Anita
Hirdető telefonszáma: +36 70 716 8951
Honlap: -