Szabolcs-Szatmár-Bereg megye, Szabolcsbáka
 

Ingatlan adatai
Irányár: 15 900 000 Ft
Típus: ház
Kategória: eladó
Alapterület: 110 m2
Fűtés: gáz (cirko)
Állapota: -
Szobák száma: 4
Építés éve: 1989
Szintek száma: -
Részletes leírás
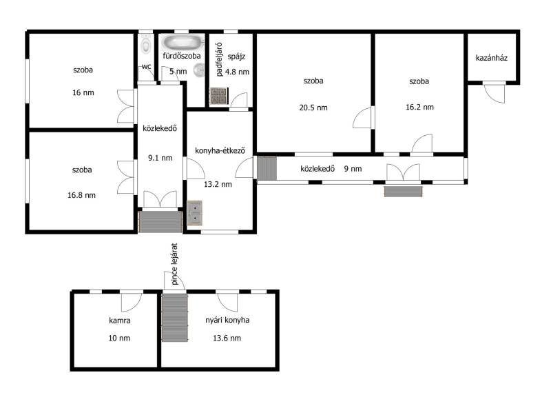
Megvételre kínálok Szabolcsbákán, főutcán egy átlagos állapotú, palával fedett családi házat melynek az első része (66.5 nm) a 80-as éveben B-30-as téglából, míg a hátsó, felújítandó/bontandó (45 nm) traktus vályogból épült, 1176 nm-es 22 méter széles telken. Az ingatlan két utcafronti szobáját keményfa parkettával, a többi helyiséget (az előszobát, a konyha-étkezőt, a külön wc-t, fürdőszobát) járólappal, valamint a hátsó részen található két szobát pvc -vel burkolták. A nyílászárók még az eredetiek, fából készültek, a melegről központi fűtés gondoskodik, ami gáz, illetve vegyes kazánnal is működtethető. Az udvaron egy különálló, teljesen alápincézett nyári konyha valamint kamra-tároló található.Szabolcsbáka eladó családi házAz ingatlanról készült videó megtekinthető: http://youtu.be/-Kig6FCAeco
További adatok
Telekterület: 867 m2
Kert mérete: 867 m2
Erkély mérete: 9 m2
Felszereltség: -
Parkolás: -
Kilátás: -
Egyéb extrák:  
-
Hirdető adatai
Hirdető neve: Otthon Centrum
Kapcsolattartó: Czeglédi Csaba
Hirdető telefonszáma: +36 70 388 5416
Honlap: -