Veszprém megye, Márkó
 

Ingatlan adatai
Irányár: 134 000 000 Ft
Típus: ház
Kategória: eladó
Alapterület: 92 m2
Fűtés: gáz (cirko)
Állapota: -
Szobák száma: 4
Építés éve: 2015
Szintek száma: -
Részletes leírás
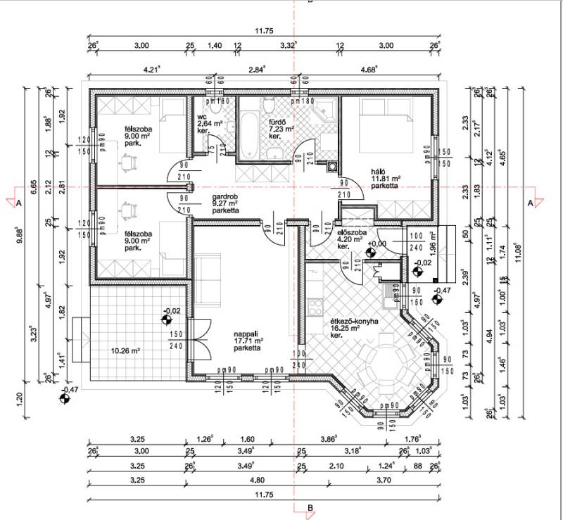
Az ingatlanról videót is készítettünk, tekintse meg weboldalunkon, a H511254 regisztrációs számra keresve!A falazat könnyűszerkezetes, készház osztrák technológiával készült, mely számos előnnyel rendelkezik:-kiemelkedő hő- és hangszigetelés, így rendkívül kedvező rezsiköltséggel működtethető,-a külső és belső falakban nagy térfogatsűrűségű (50–60 kg/m³) farostszigetelés található,-rétegrend: 5,5 mm Baumit vakolat + 60 mm vakolható farostszigetelés + 160 mm KVH fa tartóváz + 160 mm cellulóz szigetelés + 15 mm építőlemez + 40 mm belső lécváz + 12,5 mm gipszkarton,-valamint kiváló tűzvédelemmel is rendelkezik.Az ingatlan főbb jellemzői:-3 rétegű műanyag ablakok, redőnnyel és szúnyoghálóval felszerelve,-fűtés gázkazánról működik – a közlekedőben, fürdőszobában, WC-ben padlófűtés, a többi helyiségben radiátoros hőleadás,-helyiségek: 3 hálószoba, nappali, tágas konyha–étkező, WC-kézmosó, fürdőszoba,-a nappaliból közvetlen kijárat nyílik a teraszra,-az udvaron dupla beállásos garázs és egy tágas tároló is megtalálható,-nagy, sík telek – medence, játszótér vagy kerti pihenő könnyedén kialakítható,-kiváló elosztású, praktikus és élhető otthon, ideális választás családosok számára.Elhelyezkedés:Márkó mindössze 5 perc autóútra van Veszprémtől. A településen megtalálható óvoda, étterem, kisboltok, posta, gyógyszertár és orvosi rendelő – minden adott a kényelmes mindennapokhoz.Bővebb információkért és megtekintésért, keressen bizalommal!BANKFÜGGETLEN hitelben és teljes körű ügyintézésben segítünk!
További adatok
Telekterület: 1 200 m2
Kert mérete: 1 200 m2
Erkély mérete: 10 m2
Felszereltség: -
Parkolás: -
Kilátás: -
Egyéb extrák:  
-
Hirdető adatai
Hirdető neve: Otthon Centrum
Kapcsolattartó: Gacza-Nagy Regina
Hirdető telefonszáma: +36 70 388 5976
Honlap: -