Pest megye, Kiskunlacháza
 

Ingatlan adatai
Irányár: 71 000 000 Ft
Típus: ház
Kategória: eladó
Alapterület: 83 m2
Fűtés: -
Állapota: új
Szobák száma: 4
Építés éve: 2026
Szintek száma: -
Részletes leírás
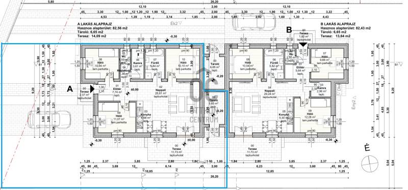
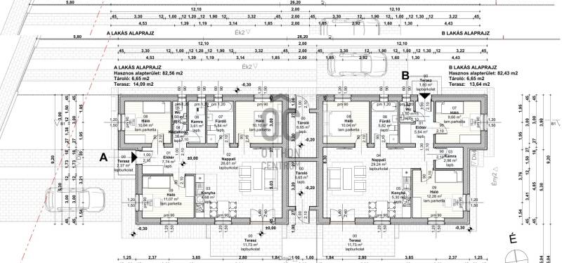
Eladó Kiskunlacházán újépítésű csak tárolónál kapcsolódó ikerház• nettó 82.56 m2 + 6.65 m2 + terasz 11.73 m2• amerikai konyhás nappali + 3 hálószoba• kamra• fűtése: hőszivattyú + padlófűtés• külső tároló• választható burkolatok (hideg és meleg: 5.000Ft/m2 segédanyagokkal együtt)• kulcsrakészenProjekt bemutatásaKiskunlacházán újépítésű családi házak eladók✅️téglaépítésű✅️hőszigetelt✅️fűtése: hőszivattyú + padlófűtés✅️választható burkolatok✅️kulcsrakészenHitel, CSOK, Otthon Start igényelhető.Várható átadás: 2026. tavaszTovábbi részletekért kérem hívjon!
További adatok
Telekterület: 337 m2
Kert mérete: 337 m2
Erkély mérete: 14 m2
Felszereltség: -
Parkolás: -
Kilátás: -
Egyéb extrák:  
-
Hirdető adatai
Hirdető neve: Otthon Centrum
Kapcsolattartó: Joó Krisztina
Hirdető telefonszáma: +36 70 469 3111
Honlap: -