Pest megye, Csömör
 

Ingatlan adatai
Irányár: 288 200 000 Ft
Típus: lakás (újépítésű)
Kategória: eladó
Alapterület: 119 m2
Fűtés: -
Állapota: új
Szobák száma: 5
Építés éve: 2026
Szintek száma: -
Részletes leírás
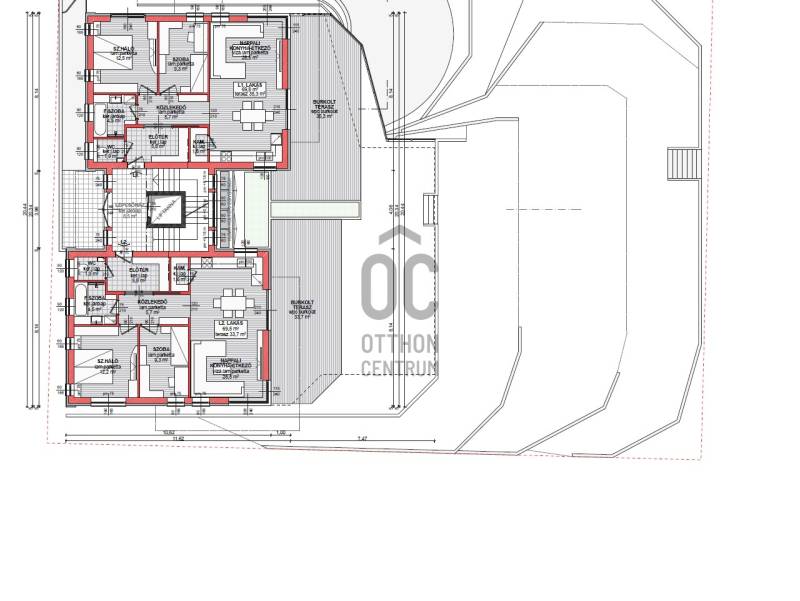
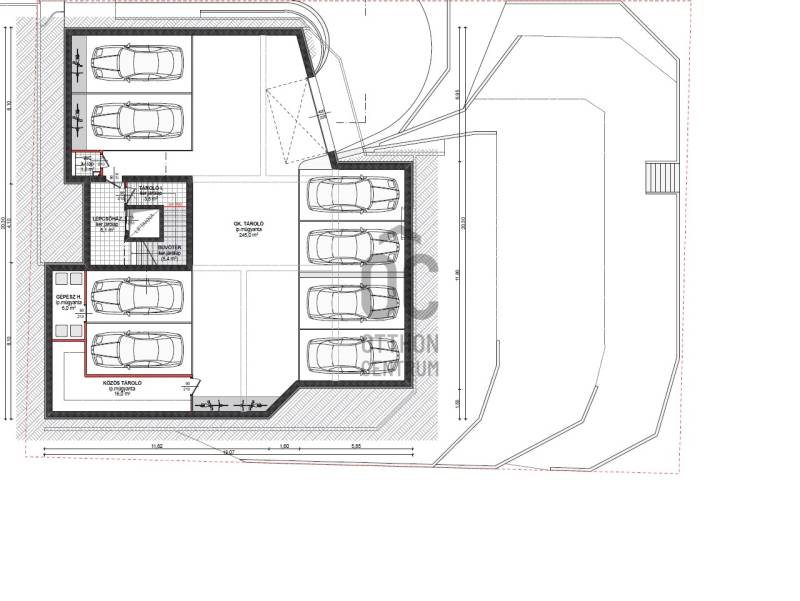
Projekt bemutatásaTestvérhegyen 2 földszinti, 2 belső kétszintes, liftes lakások épülnek, teremgarázzsal, tárolóval, 1400nm-es telken!1. lakás :70nm,nappali+2 háló, +35.3nm-es terasz,2. lakás: 70nm,nappali+2 háló+33.7 nm-es terasz,3. lakás: nettó 119nm,bruttó:126nm+19+5.2 nm terasz,4. lakás: nettó 119nm, bruttó 126nm+19+5.2 nm terasz,Műszaki tartalom:
További adatok
Telekterület: -
Kert mérete: -
Erkély mérete: 24 m2
Felszereltség: -
Parkolás: -
Kilátás: kertre néző
Egyéb extrák:  
-
Hirdető adatai
Hirdető neve: Otthon Centrum
Kapcsolattartó: Schleier Márta
Hirdető telefonszáma: +36 70 461 9591
Honlap: -