Pest megye, Budaörs
 

Ingatlan adatai
Irányár: 109 000 000 Ft
Típus: ház
Kategória: eladó
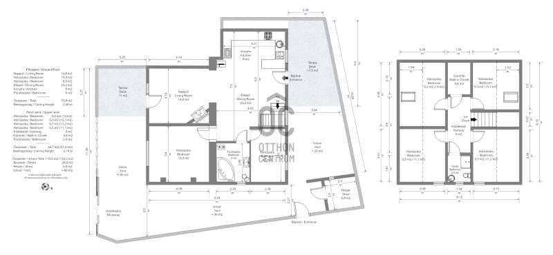
Alapterület: 133 m2
Fűtés: elektromos
Állapota: -
Szobák száma: 7
Építés éve: 2005
Szintek száma: -
Részletes leírás
Eladó egy osztatlan közös telken levő felujított családi ház Budaörs közkedvelt utcájában!
További adatok
Telekterület: 800 m2
Kert mérete: 800 m2
Erkély mérete: -
Felszereltség: -
Parkolás: -
Kilátás: -
Egyéb extrák:  
-
Hirdető adatai
Hirdető neve: Otthon Centrum
Kapcsolattartó: Fricz Patrik
Hirdető telefonszáma: +36 70 716 8711
Honlap: -