Budapest, XIII.kerület
 

Ingatlan adatai
Irányár: 285 000 000 Ft
Típus: lakás (tégla)
Kategória: eladó
Alapterület: 89 m2
Fűtés: távfűtés
Állapota: -
Szobák száma: 3
Építés éve: 1930
Szintek száma: -
Részletes leírás
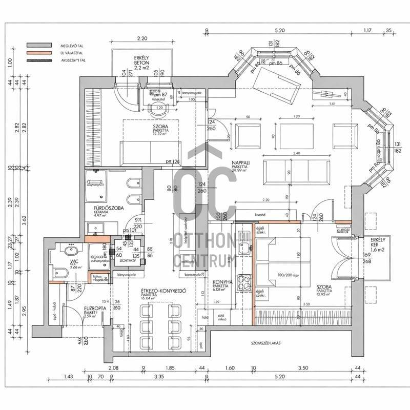
Minőségben felújított 3 szobás lakást kínálunk eladásra közvetlenül a Szent István Park mellett. A 4. emeleti saroklakás pár éve teljeskörű műszaki és esztétikai felújításon esett át. A belsőépítész tervei szerint egyedi ajtók, bútorok és burkolatok kerültek beépítésre. A lakás különlegessége a fantasztikus hangulatot teremtő csillárok, amelyek exkluzív megjelenésükkel plusz eleganciát visznek a térbe. A biztonsági bejárati ajtón belépve az előszobában egy tükrös beépített szekrény fogad. Szemben a zuhanyzós fürdőszoba, jobbra az étkező található. itt mindenhol egyedi tervek alapján készült elegáns vonalvezetésű bútorok kerültek beépítésre. A közlekedőből nyílik még egy fürdőszoba , majd az impozáns nappaliba léphetünk, amely hatalmas ablakokkal, stílusos álmennyezettel és halszálkában rakott faparkettával fogad.A kilátás pazar, hiszen egyszerre láthatjuk a Szent István Parkot és a Dunát, valamint a másik irányból a pozsonyi út klasszikus elganciája tárul elénk.A nappaliból nyílik a 2 erkélyes hálószoba.A házban távfűtés van egyedi méréssel . A modern fűtőtestek megjelenésükben a klasszikus eleganciát idézik, azonban hatékonyságukban már megfelelneka mai kor igényeinek .Újlipótvárosban lakni egy életérzés. Egy színvonal, ami megmutatkozik a városrész értékállóságában is.Itt ingatlant venni pedig olyan befektetés, ami biztosan megtérül majd. Egyetlen hátrány van itt, a nehéz parkolás, ami gondot okozhat. A tulajdonosnak van egy teremgarázs beállója 2 percre a lakástól, ezt is megvásárolhatja 15 M Ft-ért.Nincs minden nap ilyen lehetőség, jöjjön, nézze meg, biztosan beleszeret. Várom hívását.
További adatok
Telekterület: -
Kert mérete: -
Erkély mérete: 2 m2
Felszereltség: -
Parkolás: -
Kilátás: utcai
Egyéb extrák:  
-
Hirdető adatai
Hirdető neve: Otthon Centrum
Kapcsolattartó: Csányi Judit
Hirdető telefonszáma: +36 70 388 5006
Honlap: -