Budapest, I.kerület
 

Ingatlan adatai
Irányár: 129 000 000 Ft
Típus: lakás (tégla)
Kategória: eladó
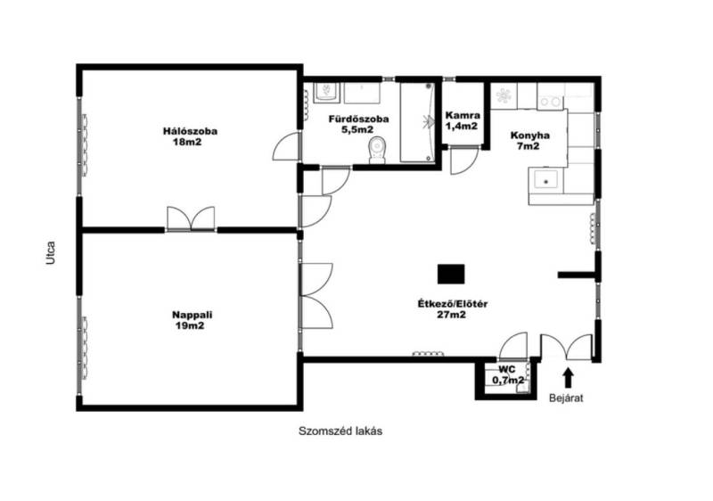
Alapterület: 88 m2
Fűtés: gáz (cirko)
Állapota: -
Szobák száma: 3
Építés éve: 1930
Szintek száma: -
Részletes leírás
Eladásra kínálunk egy 2021-ben teljeskörűen felújított, 3 szobás, amerikai konyhás, magasföldszinti társasházi lakást a Budai Vár, Vérmező felőli oldalán.A felújítás során a lakás minden helyisége új hidegburkolatot, víz- és villanyvezetékhálózatot és új szanitereket kapott. A teljes fűtésrendszer is felújítására került, új radiátorokkal, a melegvízről és a fűtésről pedig kondenzációs kazán gondoskodik.A lakás két élhető méretű (18-20 nm), utcára néző, DNY-i fekvésű, nagyon világos, külön nyíló szobával rendelkezik.A nagyon tágas (34 nm) amerikai konyhás, étkezős, nappali teréből, a lakás összes helyisége megközelíthető.Az ingatlan a három, nagy terű helységének köszönhetően, akár irodának vagy orvosi rendelőnek is kitűnően alkalmas.A 4 szintes, 13 lakásos társaház rendezett anyagi háttérrel rendelkezik. A közelmúltban újult meg a lépcsőház, valamint lift is kiépítésre került.Közös költség: 27.500 Ft/hó.Gáz, víz, villany, fogyasztás szerint.A környék nyugodt, biztonságos, gyalogosan pár perc alatt elérhető a Várnegyed, valamint a Vérmező park, játszótérrel, kutyafuttaóval, éttermekkel és kávézókkal a közelben. A környék infrastruktúrája kiváló, a pár percre található Széll Kálmán téri közlekedési csomópont, ahol az M2 metró, valamint a 4-es, 6-os villamos és számos buszjárat fut össze és teszi könnyen elérhetővé a város bármely pontját. Gyalog 10 percen belül bankok, posta, drogéria és a Mammut bevásárlóközpont is megtalálható.Ha kérdése van az ingatlannal kapcsolatban, vagy szeretné személyesen is megtekinteni, hívjon bizalommal!
További adatok
Telekterület: -
Kert mérete: -
Erkély mérete: -
Felszereltség: -
Parkolás: -
Kilátás: utcai
Egyéb extrák:  
-
Hirdető adatai
Hirdető neve: Otthon Centrum
Kapcsolattartó: Ilcsik Lóránt
Hirdető telefonszáma: +36 70 388 5721
Honlap: -